• 长白山金代皇家神庙布局复原及设计尺度初探
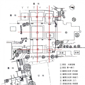
长白山金代皇家神庙布局复原及设计尺度初探李沁园 李奕洋摘要:长白山作为金王朝的肇兴之地,于金大定十二年(1172年)被金世宗敕封为“兴国灵应王”,地位尊崇,敕令于长白山以北营建祭祀庙宇,并规定每年春秋两季举行祀典。但该神庙在损毁后其位置一直不明。直至2013年,考古发掘揭示原被推定为唐代渤海国遗存的吉林安图宝马城遗址,实为一座金代高等级 ...
长白山金代皇家神庙布局复原及设计尺度初探李沁园 李奕洋摘要:长白山作为金王朝的肇兴之地,于金大定十二年(1172年)被金世宗敕封为“兴国灵应王”,地位尊崇,敕令于长白山以北营建祭祀庙宇,并规定每年春秋两季举行祀典。但该神庙在损毁后其位置一直不明。直至2013年,考古发掘揭示原被推定为唐代渤海国遗存的吉林安图宝马城遗址,实为一座金代高等级 ...
浙江古建筑地图 作者:贺从容 /李沁园 /梅静出版社:清华大学出版社页数: 628定价: 99.00元装帧: 平装丛书:中国古建筑地图ISBN: 9787302415459内容简介 编辑推荐:上千幅珍贵、精致的图片,为你勾勒出传统建筑的遗风余韵;简单、翔实的笔触,为你讲述浙江地区建筑背后的历史与文化。在现代城市快速更迭发展的今天,这是我们手中最完整最珍贵的浙江地区古建筑 ...
作为我国传入日本的最后一支禅宗分支,黄檗派在日本建立了新宗派黄檗宗,并对日本近世文化产生了重大的影响,黄檗宗寺院建筑的独特做法继和样、大佛样、禅宗样之后在日本被称为“黄檗样”。本文将尝试对黄檗宗寺院的布局特征进行归纳和对比,并试图对其祖型源流进行分析。 日本黄檗宗寺院布局初探 - 李沁园 - 日本黄檗宗源于我国明末福建福清 ...