• 自媒体短视频融入公众考古学路径探究
考古工作已经不仅仅局限于考古本身,也在关注考古与大众之间的交流,强调考古与大众之间的互动关系,采取各种措施和方式来拉近考古与大众之间的距离,从而使公众考古学得到了不断的发展和提升。随着移动互联网和智能终端的普及,一种新兴媒体——自媒体短视频得到迅速发展和大众认可,本文就从自媒体短视频如何助力公众考古学发展做简要探讨。图片图片一、 ...
考古工作已经不仅仅局限于考古本身,也在关注考古与大众之间的交流,强调考古与大众之间的互动关系,采取各种措施和方式来拉近考古与大众之间的距离,从而使公众考古学得到了不断的发展和提升。随着移动互联网和智能终端的普及,一种新兴媒体——自媒体短视频得到迅速发展和大众认可,本文就从自媒体短视频如何助力公众考古学发展做简要探讨。图片图片一、 ...
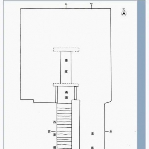
山东滕州莲青山明藩王文|魏慎玉 葛海洋滕州莲青山明藩王陵,世传为“皇城”,历史上六次被盗,2003年9月再次被盗掘。滕州市博物馆于2003年10月至2004年1月进行了抢救性发掘。 莲青山呈南北走向,有大小山峰99座,主峰为天烛峰,海拔720米。明藩王陵就座落在天烛峰南山坡上,左为红帽子山,右为西夹皮山,陵前有一条山间小溪,常年水流不断,小溪南有一无名 ...