深度阅读
躲过灭佛的犍陀罗千年古寺:塔赫提·巴依
摘要: 小时候读“南朝四百八十寺,多少楼台烟雨中”,我其实并不太能想象,江南真的有那么多寺庙吗?没想到长大后,我竟然真的在遥远的西方、犍陀罗的故地、巴基斯坦大地上见到了无数古寺遗迹……年少时去山西佛光寺和南禅寺,深感交通不便,懵懂中理解了为什么偏远的位置可以保护着这两座寺庙流传至今。而在巴基斯坦的马尔丹,也有这样一座寺庙,由于地处偏远得 ...
躲过灭佛的犍陀罗千年古寺:塔赫提·巴依原创 姚晓 春野渡 2024年4月30日 22:11 韩国小时候读“南朝四百八十寺,多少楼台烟雨中”,我其实并不太能想象,江南真的有那么多寺庙吗?没想到长大后,我竟然真的在遥远的西方、犍陀罗的故地、巴基斯坦大地上见到了无数古寺遗迹……
年少时去山西佛光寺和南禅寺,深感交通不便,懵懂中理解了为什么偏远的位置可以保护着这两座寺庙流传至今。而在巴基斯坦的马尔丹,也有这样一座寺庙,由于地处偏远得以在两千年后重见天日……
书接上文:
在千年古城白沙瓦,聆听犍陀罗的遗响
从白沙瓦发家的乱世富豪,陨落在十月革命
两千年古寺,如何逃过劫难?
离开白沙瓦后,我们启程前往马尔丹。高速上车流很多,窗外是一片沃野。
此前我曾去过开伯尔-普赫图赫瓦省的一些地方,多是山区,我就以为开普多山地。实际上经过这次的白沙瓦和马尔丹之行,我发现这里也有一望无际的平原,难怪会成为当年繁荣昌盛的犍陀罗古国所在地。
但我心里疑惑,照片上的塔赫提·巴依是在山上呀,可是眼前连个土包子都没有?

马尔丹街头的小米和传音
没多久,汽车穿过马尔丹城,我们开始走上小路。小路两侧挤满了民居和小店,道路非常狭窄,却突然有了坡度,原来,这里竟到了山与平原的交界处。
下车之后,我们步行上山。爬了好一阵石梯之后,终于抬头望到了两千年前的古寺墙壁。


说实话,虽然巴基斯坦有众多犍陀罗古寺遗迹,但是其中最壮观、保存相对完整的,恐怕还是塔赫提-巴依,这座古寺也在1980年就被评为世界文化遗产。
爬上山顶后,站在古寺的断壁残垣上,可以看到这座山头虽然不高,但山脚下的平原一览无余。

这番景象,不禁让人想起塔克西拉的贾乌利安遗址,贾乌利安遗址也是建在一座小山头上,俯瞰视野绝佳。(塔克西拉① | 一千多年前,玄奘在这里留下了足迹)
甚至之前去过的帕玛拉遗址,也是建在河流深处的一座山头上,虽然有些僻远,但胜在安静,而且居高临下,风光绝妙,说不定也可以起到军事瞭望的功能,不知道当年的僧侣们,在垒起佛塔的第一块石头时,是不是就考虑到了这些呢?

塔赫提-巴依遗址,这个单词到底来自哪种语言有不同的说法,比较普遍的说法是“塔赫提”(Takht)指王座,亚历山大·坎宁安解释为位置,“巴依”(Bhai)指的是泉水,坎宁安解释为水库,Takht-i-Bhai连起来的意思是泉水的王座,按坎宁安的解释就是水库的位置,因为附近有一汪山泉。

1836年,为兰吉特·辛格服务的法国军官发现了这处古迹。20世纪初,古寺才经过考古发掘重见天日。这座古寺大概始建于公元前1世纪,一直被使用到公元7世纪,放到中国的历史时间线上,大概就是从汉到唐。

公元前3世纪阿育王时期,佛教开始传入犍陀罗地区,塔克西拉的法王塔据说就是阿育王所建。塔赫提-巴依则比法王塔稍晚一些,现在一般把它的建造分为四个历史时期。
最早的是从公元前1世纪到公元2世纪,从印度-帕提亚帝国一直到后来的贵霜帝国。因为这里发现过刻有贡多法雷斯 (Gondophares)名字的佉卢文铭文,目前这块石板被保存在拉合尔博物馆。贡多法雷斯是印度-帕提亚王朝的创始人,公元20至46年在位。
这时期修建了很多佛塔庭院、僧舍、厨房和食堂。

第二阶段是公元3至4世纪,贵霜帝国后期修建了主佛塔和礼堂。
第三阶段是公元4至5世纪,主宰这里的是被嚈哒人赶得向南跑的基达里人,中国史书上称之为“寄多罗”人,认为他们源出于河西走廊的月氏人。他们修建了佛塔周围的一处“三塔林”?(这里的court怎么翻译……)
最后一个阶段是公元6至7世纪白匈奴人来了之后,主要修建的是一处需要钻洞进去的密宗冥想室。

密宗山洞的其中一个入口

背上有“犍陀罗守护人”字样的大哥
冥想室并不小,钻进洞后,你会发现还有一排更矮的洞口,需要弯腰进入。

冥想室内部,左侧有一排更小的洞口
5世纪时,白匈奴人的扩张,打破了犍陀罗的宁静。公元520年,中国的朝圣者宋云来到犍陀罗,见到了当时白匈奴的王摩酰逻矩罗。
摩酰逻矩罗屠杀了大量犍陀罗人,摧毁了很多佛教寺庙。无论是更早的、阿育王建于公元前3世纪的法王塔,还是更晚的建于公元2世纪的贾乌里安,都毁于一旦,只有塔赫提-巴依因为位置相对偏僻得以幸存。

等到公元7世纪玄奘西行来到这里的时候,佛教已然衰落。
不过在这衰落中,又孕育出了佛教最后的辉煌,也就是密宗。
公元8世纪,诞生于斯瓦特(古称乌仗那)的佛教密宗大师莲花生应吐蕃赞普赤松德赞的邀请进入西藏传教,创立了西藏第一座寺庙桑耶寺,成为藏传佛教的主要奠基者。
所以,塔赫提-巴依的密宗冥想室,是与莲花生大师同时代,甚至比莲花生大师更早的。
犍陀罗的古寺,跟中国有什么不一样?
中国的寺庙我们经常见,大概就是山门、大雄宝殿、藏经阁之类的建筑,那么玄奘去西天取经路上的犍陀罗古寺,又长什么样子呢?

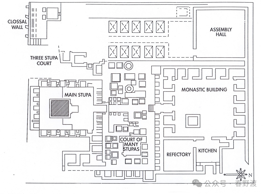
俯视图
其实看多了会发现,巴基斯坦的古寺格局大多有相似之处,比如这张俯视图的左上方,中间有个四方形佛塔基座的,就是这座寺庙主佛塔所在地。四周围了一圈的小房间,之前里面应该都是供着佛像的。

这张应该是站在佛塔基座前拍的


佛塔四周的佛龛
塔克西拉的法王塔虽然规模很大,但坍塌过多,看不出来房子的上半部分长啥样,而塔赫提-巴依则因为保存良好,可以根据残存推断此前的建筑样式。比如这个佛龛是四方形,但顶部是个圆锥体,是我第一次见。

近距离看佛龛,之前里面应该有佛像

这是个保存相对完好的佛龛,可以看到顶部是圆锥体
俯视图的左下角中间一个水池、四周围着一格又一格的小房间的,是僧侣们住宿、学习的僧舍,这个四方形的一角则是厨房和食堂。
夹在僧舍和佛塔之间的,应该是一些小的还愿塔。

这张图需要右转90°才与上图方向一致
在塔克西拉的达摩拉吉卡,就有一间这样的房间,导游会告诉你玄奘住过。

看这个小小的窗户洞,其实不是平的
跟达摩拉吉卡的法王塔和贾乌里安相比,塔赫提-巴依保存下来的墙也更高一些,可以更加清楚地看到房间上方的小窗户洞。

跟我们日常看到的窗户相比,这种窗户洞位置很高,人即便踮起脚也够不着,口很小,而且窗户口的厚墙是斜切着向上向外的。至于原因,可以参看我的上一篇文章:从白沙瓦发家的乱世富豪,陨落在十月革命
可以看到,跟中国的古寺相比,犍陀罗的寺庙之所以可以保存两千年,因为人家毕竟是石头垒出来的。(突然好奇这种石头上会涂上涂料啥的吗?总不能一直用这种毛坯房吧……)
这种石头的建造方式也很特别,中间一块大石头,旁边缝隙处用小石头或者石板填充,被称作“diaper style”,每次谷歌都自动翻译为尿布风格2333实际上应该是指一种重复的菱形排布风格,不知道有人知道这个专有名词该怎么翻译吗?

塔克西拉贾乌里安的石头也是这样建造的
塔克西拉博物馆专门展示了这种建筑方式的演变,从下往上年代越来越近:

站在高处,可以看到塔赫提-巴依残存的建筑依然很高很雄伟。

有的地方为了防止坍塌,用钢筋支撑起来了。

曾经的千里佛国,历经天灾人祸的诸多磨难,如今只留下这些断壁残垣。
游览中我惊喜地看到,一位本地人身穿写着中文“犍陀罗守护人”的夹克。之前就听说过邵学成老师在当地开展犍陀罗守护人计划,促进本地社区自发了解和保护这些遗迹,而身在异乡的我们,看到中文和佛塔,总是倍感亲切的。
走的时候小陈说,塔赫提-巴依应该被叫做“巴基斯坦的马丘比丘”,肯定有很多人想来看。实际上,无论从建成年代、保存情况还是壮观程度,这里都绝不比那个真正的马丘比丘逊色。或许有一天,巴基斯坦安全局势能够稳定下来,会有更多的人慕名而来。
年少时去山西佛光寺和南禅寺,深感交通不便,懵懂中理解了为什么偏远的位置可以保护着这两座寺庙流传至今。而在巴基斯坦的马尔丹,也有这样一座寺庙,由于地处偏远得以在两千年后重见天日……
书接上文:
在千年古城白沙瓦,聆听犍陀罗的遗响
从白沙瓦发家的乱世富豪,陨落在十月革命
两千年古寺,如何逃过劫难?
离开白沙瓦后,我们启程前往马尔丹。高速上车流很多,窗外是一片沃野。
此前我曾去过开伯尔-普赫图赫瓦省的一些地方,多是山区,我就以为开普多山地。实际上经过这次的白沙瓦和马尔丹之行,我发现这里也有一望无际的平原,难怪会成为当年繁荣昌盛的犍陀罗古国所在地。
但我心里疑惑,照片上的塔赫提·巴依是在山上呀,可是眼前连个土包子都没有?

马尔丹街头的小米和传音
没多久,汽车穿过马尔丹城,我们开始走上小路。小路两侧挤满了民居和小店,道路非常狭窄,却突然有了坡度,原来,这里竟到了山与平原的交界处。
下车之后,我们步行上山。爬了好一阵石梯之后,终于抬头望到了两千年前的古寺墙壁。


说实话,虽然巴基斯坦有众多犍陀罗古寺遗迹,但是其中最壮观、保存相对完整的,恐怕还是塔赫提-巴依,这座古寺也在1980年就被评为世界文化遗产。
爬上山顶后,站在古寺的断壁残垣上,可以看到这座山头虽然不高,但山脚下的平原一览无余。

这番景象,不禁让人想起塔克西拉的贾乌利安遗址,贾乌利安遗址也是建在一座小山头上,俯瞰视野绝佳。(塔克西拉① | 一千多年前,玄奘在这里留下了足迹)
甚至之前去过的帕玛拉遗址,也是建在河流深处的一座山头上,虽然有些僻远,但胜在安静,而且居高临下,风光绝妙,说不定也可以起到军事瞭望的功能,不知道当年的僧侣们,在垒起佛塔的第一块石头时,是不是就考虑到了这些呢?

塔赫提-巴依遗址,这个单词到底来自哪种语言有不同的说法,比较普遍的说法是“塔赫提”(Takht)指王座,亚历山大·坎宁安解释为位置,“巴依”(Bhai)指的是泉水,坎宁安解释为水库,Takht-i-Bhai连起来的意思是泉水的王座,按坎宁安的解释就是水库的位置,因为附近有一汪山泉。

1836年,为兰吉特·辛格服务的法国军官发现了这处古迹。20世纪初,古寺才经过考古发掘重见天日。这座古寺大概始建于公元前1世纪,一直被使用到公元7世纪,放到中国的历史时间线上,大概就是从汉到唐。

公元前3世纪阿育王时期,佛教开始传入犍陀罗地区,塔克西拉的法王塔据说就是阿育王所建。塔赫提-巴依则比法王塔稍晚一些,现在一般把它的建造分为四个历史时期。
最早的是从公元前1世纪到公元2世纪,从印度-帕提亚帝国一直到后来的贵霜帝国。因为这里发现过刻有贡多法雷斯 (Gondophares)名字的佉卢文铭文,目前这块石板被保存在拉合尔博物馆。贡多法雷斯是印度-帕提亚王朝的创始人,公元20至46年在位。
这时期修建了很多佛塔庭院、僧舍、厨房和食堂。

第二阶段是公元3至4世纪,贵霜帝国后期修建了主佛塔和礼堂。
第三阶段是公元4至5世纪,主宰这里的是被嚈哒人赶得向南跑的基达里人,中国史书上称之为“寄多罗”人,认为他们源出于河西走廊的月氏人。他们修建了佛塔周围的一处“三塔林”?(这里的court怎么翻译……)
最后一个阶段是公元6至7世纪白匈奴人来了之后,主要修建的是一处需要钻洞进去的密宗冥想室。

密宗山洞的其中一个入口

背上有“犍陀罗守护人”字样的大哥
冥想室并不小,钻进洞后,你会发现还有一排更矮的洞口,需要弯腰进入。

冥想室内部,左侧有一排更小的洞口
5世纪时,白匈奴人的扩张,打破了犍陀罗的宁静。公元520年,中国的朝圣者宋云来到犍陀罗,见到了当时白匈奴的王摩酰逻矩罗。
摩酰逻矩罗屠杀了大量犍陀罗人,摧毁了很多佛教寺庙。无论是更早的、阿育王建于公元前3世纪的法王塔,还是更晚的建于公元2世纪的贾乌里安,都毁于一旦,只有塔赫提-巴依因为位置相对偏僻得以幸存。

等到公元7世纪玄奘西行来到这里的时候,佛教已然衰落。
不过在这衰落中,又孕育出了佛教最后的辉煌,也就是密宗。
公元8世纪,诞生于斯瓦特(古称乌仗那)的佛教密宗大师莲花生应吐蕃赞普赤松德赞的邀请进入西藏传教,创立了西藏第一座寺庙桑耶寺,成为藏传佛教的主要奠基者。
所以,塔赫提-巴依的密宗冥想室,是与莲花生大师同时代,甚至比莲花生大师更早的。
犍陀罗的古寺,跟中国有什么不一样?
中国的寺庙我们经常见,大概就是山门、大雄宝殿、藏经阁之类的建筑,那么玄奘去西天取经路上的犍陀罗古寺,又长什么样子呢?

俯视图
其实看多了会发现,巴基斯坦的古寺格局大多有相似之处,比如这张俯视图的左上方,中间有个四方形佛塔基座的,就是这座寺庙主佛塔所在地。四周围了一圈的小房间,之前里面应该都是供着佛像的。

这张应该是站在佛塔基座前拍的


佛塔四周的佛龛
塔克西拉的法王塔虽然规模很大,但坍塌过多,看不出来房子的上半部分长啥样,而塔赫提-巴依则因为保存良好,可以根据残存推断此前的建筑样式。比如这个佛龛是四方形,但顶部是个圆锥体,是我第一次见。

近距离看佛龛,之前里面应该有佛像

这是个保存相对完好的佛龛,可以看到顶部是圆锥体
俯视图的左下角中间一个水池、四周围着一格又一格的小房间的,是僧侣们住宿、学习的僧舍,这个四方形的一角则是厨房和食堂。
夹在僧舍和佛塔之间的,应该是一些小的还愿塔。

这张图需要右转90°才与上图方向一致
在塔克西拉的达摩拉吉卡,就有一间这样的房间,导游会告诉你玄奘住过。

看这个小小的窗户洞,其实不是平的
跟达摩拉吉卡的法王塔和贾乌里安相比,塔赫提-巴依保存下来的墙也更高一些,可以更加清楚地看到房间上方的小窗户洞。

跟我们日常看到的窗户相比,这种窗户洞位置很高,人即便踮起脚也够不着,口很小,而且窗户口的厚墙是斜切着向上向外的。至于原因,可以参看我的上一篇文章:从白沙瓦发家的乱世富豪,陨落在十月革命
可以看到,跟中国的古寺相比,犍陀罗的寺庙之所以可以保存两千年,因为人家毕竟是石头垒出来的。(突然好奇这种石头上会涂上涂料啥的吗?总不能一直用这种毛坯房吧……)
这种石头的建造方式也很特别,中间一块大石头,旁边缝隙处用小石头或者石板填充,被称作“diaper style”,每次谷歌都自动翻译为尿布风格2333实际上应该是指一种重复的菱形排布风格,不知道有人知道这个专有名词该怎么翻译吗?

塔克西拉贾乌里安的石头也是这样建造的
塔克西拉博物馆专门展示了这种建筑方式的演变,从下往上年代越来越近:

站在高处,可以看到塔赫提-巴依残存的建筑依然很高很雄伟。

有的地方为了防止坍塌,用钢筋支撑起来了。

曾经的千里佛国,历经天灾人祸的诸多磨难,如今只留下这些断壁残垣。
游览中我惊喜地看到,一位本地人身穿写着中文“犍陀罗守护人”的夹克。之前就听说过邵学成老师在当地开展犍陀罗守护人计划,促进本地社区自发了解和保护这些遗迹,而身在异乡的我们,看到中文和佛塔,总是倍感亲切的。
走的时候小陈说,塔赫提-巴依应该被叫做“巴基斯坦的马丘比丘”,肯定有很多人想来看。实际上,无论从建成年代、保存情况还是壮观程度,这里都绝不比那个真正的马丘比丘逊色。或许有一天,巴基斯坦安全局势能够稳定下来,会有更多的人慕名而来。