丝路遗产丝绸之路:长安天山廊道的路网-丝路资讯 -

丝路资讯

• 乌兹别克斯坦共和国明铁佩古城遗址考古工作综述

乌兹别克斯坦共和国明铁佩古城遗址考古工作综述中国历史研究院2026年1月31日 19:31北京作者:中国社会科学院考古研究所中亚考古队来源:《考古学集刊》第20集明铁佩遗址西门马面发掘保护2011年12月,中国社会科学院考古研究所与乌兹别克斯坦共和国科学院考古研究所签订“中亚东北部地区古代及中世纪早期时代东西方文化交流考古研究”合作研究协议,计划用5 ...

• 唐长安西市遗址制骨遗存与制骨手工业

何岁利 盖旖婷:唐长安西市遗址制骨遗存与制骨手工业何岁利 盖旖婷中国历史研究院2022年12月28日 13:46北京作者:何岁利 盖旖婷来源:“社科院考古所中国考古网”微信公众号原文刊载于《南方文物》2022年第4期(图源:西安大唐西市博物馆)唐长安西市,位于廓城偏北皇城之西南,其位置与东市(位于皇城之东南)东西对称(图一),是唐长安城最为繁华的商业 ...

• 唐大明宫考古新成果与宫城建筑布局

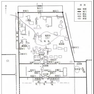
故宫院刊 | 何岁利:唐大明宫考古新成果与宫城建筑布局原创何岁利故宫博物院院刊2025年04月17日 09:02北京2000年以来,唐大明宫考古工作进入到一个新时期,相继取得了大量新成果,内容涉及宫墙、宫门、宫内道路、龙首渠及桥梁等。这些考古新成果是研究大明宫宫城形制与建筑布局的新资料。通过这批新资料,作者对大明宫平面结构的形成与原因、大明宫南部朝 ...

• 古州城遗址出土罕见唐代龙首

2024年10月28日,中国社会科学院考古研究所、河北省文物考古研究院联合考古队在河北雄安新区雄县古州城遗址考古中发掘出土了罕见的唐代龙首。该龙首是在古州城内一处唐代高等级寺院建筑遗址旁边的砖瓦坑中发掘出土的,一起出土的文物还有大量的唐代砖瓦、莲花瓦当、开元通宝钱币等,初步判定为唐代龙首。该龙首应位于房顶的垂脊末端,或者是在戗脊上,准确 ...

• 考古学视野下的燕云十六州——以鄚州城为中心

  2019-2020年,考古工作者对“燕云十六州”城址之一的鄚州城遗址进行了勘探与发掘,发现城墙、护城河、道路遗址等,并出土了砖、瓦、陶瓷器等相关遗物。研究表明,鄚州城遗址营建年代可能在唐末五代至北宋初年,城址性质可能为五代、北宋时期莫(鄚)州鄚县城址,金、元时期莫(鄚)亭县城址。通过发掘,对古代鄚州城的营建年代、历史地理环境、沿革变 ...

• 西安唐大明宫太液池南岸遗址发现大型廊院建筑遗存

  西安唐大明宫太液池南岸遗址发现大型廊院建筑遗存  《考古》2004年09期 中国社会科学院考古研究所  2004年春季,中国社会科学院考古研究所和日本独立行政法人文化财研究所奈良文化财研究所联合考古队经过三个月的发掘,在西安唐长安城大明宫太液池南岸遗址上清理出一组大型廊院建筑遗存(图一)。这是继2003年发掘太液池北岸遗址干栏式建筑基础以 ...

• 何岁利| 唐代第一国门—唐大明宫丹凤门遗址考古亲历记

考古对于绝大多数人来说,充满着神秘与好奇,例如一些遗存是怎样发现的?又是怎样逐步揭开其神秘面纱的?唐代大明宫,作为古代中国最为壮丽的宫苑之一,考古工作至今已开展半个世纪有余,重大发现数不胜数,但这些发现背后的背景和故事却鲜为人知。我作为大明宫遗址第三代考古工作者,与其相伴已有十余年,亲身经历并见证了一些重大考古项目的始末。我们今 ...

• 西安北郊龙首村西汉墓发掘简报

  西安北郊龙首村西汉墓发掘简报  《考古》2002年05期 中国社会科学院考古研究所西安唐城工作队  1991年夏季,我队在配合陕西省西安市房地产二分局基建过程中,于唐大明宫遗迹保护区内先后发掘了两座汉墓。两座汉墓间距4.4米,自西向东依次编号为91CTDXM1、91CTDXM2(以下简称为M1、M2)。这两座汉墓位于西安市北郊龙首村龙首北路东段南侧,西距草滩路 ...

• 何岁利:唐长安城西市考古新发现与相关研究

  摘要:唐长安城西市近些年有许多考古新发现,内容主要涉及十字街、石板桥、石涵洞、街道和水沟、木板桥、砖砌水涵洞、水井、灰坑、骨器作坊以及一些重要佛教遗物等。这些新发现为西市的规划格局、商业遗存结构、佛教文化以及西市繁荣与变迁等研究提供了珍贵资料。研究表明,西市众多商业遗存模式为临街开店,并集店后制造、加工于一体的“前店后坊”格 ...

• 丝路古城明铁佩具有独特文化背景

中国社会科学网-中国社会科学报 作者:何岁利 艾力江明铁佩遗址位于乌兹别克斯坦安集延州马哈马特,北距州府安集延市约40公里,东距奥什(吉尔吉斯斯坦境内)45公里,西距库瓦古城约30公里,扼守费尔干纳盆地南缘交通要道,是丝绸之路沿线一处重要古城址。  明铁佩当系“贰师城”  早在公元前2000年前后,费尔干纳盆地就已产生以灌溉农业为代表的古老文化。据不完全统计,盆地内的古城遗址有20余处,规模不等、形制不一、时代跨度大、文 ...

• 何岁利:唐大明宫“三朝五门”布局的考古学观察

“三朝五门”制度来自周礼,是中国古代都城宫室规划的重要内容,历朝对此都有不同程度的诠释。大明宫“三朝五门”布局则是唐代对这一制度遵从并比附到宫城规划空间上的一种体现,为我们理解唐代大明宫政治空间格局以及宫城形制布局提供了一种考察视角。      目前历史学界对唐长安太极宫、大明宫三朝制度及其与周礼古制之间的关系,已经有较系 ...

• 唐长安城考古笔记

基本信息:作者:何岁利出版社:陕西师范大学出版总社出版时间:2018年12月版次:1印刷时间:2018年12月印次:1ISBN:9787569504101内容简介:  本书是专业考古工作者以60多年唐长安城考古成果为基础,讲述了考古工作者对唐代长安城的考古探索与发现及其长安城的辉煌成就。作者还结合自己20多年长安城考古亲身经历给大家讲述了考古工作背后一些鲜为人知 ...

热门信息

img

地址:陕西省西安市碑林区友谊西路68号小雁塔历史文化公园
邮件:secretariat#iicc.org.cn
电话:(+86)029-85246378