书籍资料库
咸阳崔家村汉墓发掘简报
原作者: 咸阳市文物考古研究所 |
来自: 考古 |
发布时间:2024-11-17 11:29 |
查看: 918 | 发布者: gogoyy |
摘要: 咸阳崔家村汉墓发掘简报咸阳市文物考古研究所摘要:2013年11月至12月,咸阳市文物考古研究所在配合恒兴公司电容汽车动力电池生产项目的基础建设中,清理了一批古代墓葬,其中两座规模较大,形制较典型,为研究汉代墓葬形制补充了新的资料。关键词:咸阳 墓葬 汉代2013年11月至12月,咸阳市文物考古研究所在秦都区双照街办崔家村以北,旅游路北侧(图一), ...
咸阳崔家村汉墓发掘简报
咸阳市文物考古研究所
摘要:2013年11月至12月,咸阳市文物考古研究所在配合恒兴公司电容汽车动力电池生产项目的基础建设中,清理了一批古代墓葬,其中两座规模较大,形制较典型,为研究汉代墓葬形制补充了新的资料。
关键词:咸阳 墓葬 汉代
2013年11月至12月,咸阳市文物考古研究所在秦都区双照街办崔家村以北,旅游路北侧(图一),配合咸阳恒兴科工贸有限公司拟建的超级电容汽车动力电池全自动生产线项目建设,对征地范围内的古墓葬进行了抢救性发掘。此次共清理两汉时期墓葬12座、陶窑1座。其中M6、M12墓葬形制较为典型,现简报如下:
M6为长斜坡墓道竖穴土坑墓。坐东朝西,方向80°,由墓道、墓室组成(图二),通长29.5米。
墓室东南部被M7墓室打破。墓道位于墓室东侧,开口距地表1米,平面呈梯形,长19.7、东端宽3.1、西端宽5.0米,填土夯筑,夯层厚0.2~0.3米。墓道南、北两壁各有三级内收台阶,第一级台阶距墓道开口0.5米,长17.6米,西宽东窄,最宽处0.25米;第二级台阶距第一级台阶2米,长12.5米,西宽东窄,最宽处0.23米。第三级台阶距第二级台阶2.8米,长8.4米,西宽东窄,最宽处0.27米。第三级台阶之下为直壁,宽2.7米,距开口深9.7米。
A型 1件(M6:6)。侈口,束颈,圆腹,圜底,口沿上附有一对环形耳。口径12.5、腹径13.0、高8.7、通高11.5厘米(图三,11)。B型 2件(M6:4、M6:5)。形制相同。标本M6:4,方唇,直口,圆肩,上腹部有一周扁平突起,下腹弧收,小平底,肩部有一对铺首衔环。口径8.4、腹径19.2、底径6.1、高13.5厘米(图三,9;封二,4)。鼎 3件(M6:1、M6:2、M6:3)。器形相同。标本M6:1,子母敛口,深弧腹,圜底较平,蹄形足,附有两圆形耳,上腹部有一周凸弦纹。盖为球面形,上附有三个圆环形钮。口径16.2、腹径18.5、腹深8.5、通高16.7厘米(图三,10;封二,3)。灯 1件(M6:7)。圆形浅盘,直壁平底。盘中央有一圆锥形的小突起,灯盘附有叶片状执柄,之下连接一铜杆,杆上有数周突起,铜杆下端较尖,原应插在一底座上。灯盘直径8.6、腹深0.5厘米,执柄长6.7厘米,通高12.7厘米(图三,12;封二,5)。
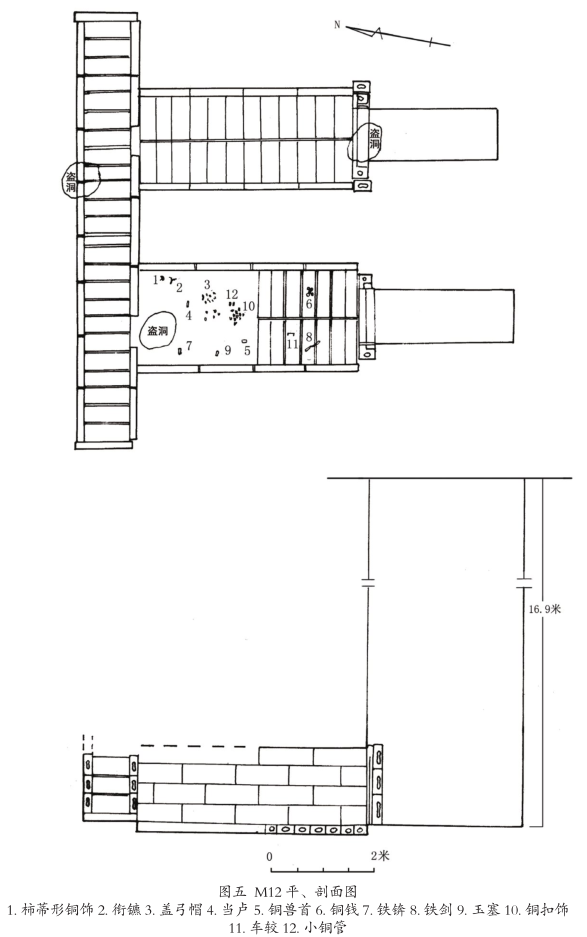
前室与墓道连接,无甬道。东前室为空心砖垒砌,平面呈长方形,长4.15、宽1.5、直壁高1.35米,顶部坍塌,结构和高度不清。东、西两壁为空心砖纵向侧立对缝砌成,共有3层,每层有4块,砖长1.05、宽0.45、厚0.15米;两排横向平置的空心砖铺底,每排12块,砖长0.8、宽0.2、厚0.15米。前、后室之间以空心砖隔开,过道宽0.55、进深0.3米。西前室形制基本同于东前室,保存稍差。后室平面呈横长方形,长8.3、宽0.9米,直壁残高0.85~1.1米,顶部坍塌,结构及高度不清。南、北两壁以空心砖横向侧立对缝砌成,残存2~3层;底部比前室高0.15米,空心砖纵向平铺,共12块。砖长0.9、宽0.35、厚0.15米。墓葬盗扰严重,葬具、葬式不清。空心砖纹饰均为原点纹和柿蒂纹相间,边框饰斜绳纹。出土器物12件(组),按质地可分为铜器、铁器、玉器等。柿蒂形铜饰 1组(M12:1)3件。标本M12:1-1,四叶柿蒂形,中有一圆孔,孔内插一泡钉,泡钉仅剩球面形钉盖。对角长5.5厘米,高0.7厘米(图六,5)。衔镳 1组(M12:2)2件。标本M12:2-1,镳呈“S”状,两端有纹饰,中有二穿孔,插于衔环中,衔分二节。镳长12.5,衔长7.2厘米(图六,2)。标本M12:2-2,镳两端为圆形,中有二穿孔,插于衔环中,衔分二节。镳长7.2厘米,衔残长5.5厘米(图六,3)。M6为长斜坡墓道竖穴土坑墓,且墓内积沙积炭,这种墓葬形制流行时间较长,从先秦一直流行到西汉中晚期,M6与西安尤家庄积沙汉墓形制相同,而该墓葬时代被确定为西汉中晚期[1]。随葬品方面,器物组合主要为釉陶壶、仓、罐,其中酱釉陶仓与西安市图书馆M2出土的釉陶仓相似,该墓时代为西汉宣帝后段至元帝时期,即西汉中晚期[2],综上所述,M6时代应为西汉中晚期。M12为竖穴墓道空心砖墓,从墓葬形制看咸阳地区空心砖墓主要流行于西汉中晚期。该墓被盗扰严重未发现随葬陶器,但出土有随葬车马器,西汉早期只有较大的墓葬才随葬车马器,西汉中期到新莽时期部分小型墓葬也开始随葬车马明器。M12出土五铢钱与洛阳烧沟汉墓II型铜钱相同,其铸造时代为宣帝到平帝的西汉中晚期[3]。因此综上我们可以判定M12的时代应在西汉中晚期。此次发掘的M6为长斜坡墓道竖穴土坑墓,其形制与战国时期的甲字形墓并无二致,这种墓葬形制在关中地区一直延续到西汉中期,在长江流域以及南方和北方的边远地区则延续到西汉后期,甚至东汉前期,而与此同时期的中小型墓葬形制的变化则显得非常明显。之所以出现这种现象有学者认为可能是由于墓葬形制演进的速度反映了社会不同阶层在丧葬习俗方面受传统礼制影响的程度不同,具体来说就是社会上层受传统礼制影响最大,所以其变化较慢,社会下层受传统礼制影响较小,其变化速度较快[4]。而从M6随葬品种类也可以看出,虽然大型墓葬的形制变化较小,但随葬品的变化还是很明显的,M6中出土的原始瓷器正说明了这一点。另外,M6规模较大,棺椁奢华装饰有大量鎏金铜制柿蒂形和圆形装饰物,虽被盗扰仍出土有青铜器、玉衣残片、附铜釦的漆器残片,原始瓷器等精美的随葬品,墓主身份应该为列侯级别。最后,M6木质椁室保存较好这在关中地区较为罕见,而这为我们研究西汉大中型墓葬的内部结构提供了难得的实物资料。咸阳是全国发现有西汉空心砖墓的地区之一,而此次发现的M12是一座形制较为少见的空心砖墓,其有两个相互平行的墓道和前室,从结构上看像是两座并列的墓葬后室连接在一起,但两个墓道和前室的深度相似,且后室空心砖壁和空心砖铺底结构相当完整,应该为同时修筑的一座墓葬,该墓从形制上看应当是一座夫妻合葬墓,而这种形制究竟是个体墓葬在修建中的特殊情况还是咸阳地区西汉空心砖墓所独有的形制,还有待以后考古资料的进一步丰富才能做出准确的判断。崔家村墓群位于西汉平陵邑东侧,其墓葬年代上限为西汉中期,下限到东汉时期,与汉平陵邑的时代基本相符,这说明该墓群与平陵邑有着直接的关系。而这批墓葬级别较高,也说明了平陵邑内居住的人群有着特殊的身份地位,也从侧面印证了“募郡国吏民訾百万以上徙平陵”[5]的史料记载。[1]陕西省考古研究所:《西安北郊汉代积沙墓发掘简报》,《考古与文物》2003年第5期。[2]西安市文物保护考古所、郑州大学考古专业:《长安汉墓》,陕西人民出版社,2004年。[3]中国科学院考古研究所:《洛阳烧沟汉墓》,科学出版社,1959年。[4]张翔宇:《西安地区汉代墓葬演变论述》,《西安文物考古研究》,三秦出版社,2013年。