文博信息
十大考古参评项目|浙江嘉兴东塔寺遗址
摘要: 发掘单位浙江省文物考古研究所、嘉兴市文物保护与考古研究所、嘉兴市博物馆项目负责人李晖达东塔寺遗址位于嘉兴市南湖区南湖街道东塔路,东距嘉兴老城约2.1公里,平面大致为南北向长方形,面积约4万平方米,是一处典型的大型寺院建筑遗址。东塔寺遗址位置据嘉兴方志记载,寺院始建于南朝梁天监二年(503),隋代置塔,是嘉兴“七塔八寺”中最古老的一座佛 ...
发掘单位
浙江省文物考古研究所、嘉兴市文物保护与考古研究所、嘉兴市博物馆
项目负责人
李晖达
东塔寺遗址位于嘉兴市南湖区南湖街道东塔路,东距嘉兴老城约2.1公里,平面大致为南北向长方形,面积约4万平方米,是一处典型的大型寺院建筑遗址。
东塔寺遗址位置
据嘉兴方志记载,寺院始建于南朝梁天监二年(503),隋代置塔,是嘉兴“七塔八寺”中最古老的一座佛塔;历代屡毁屡建,北宋元丰己未年(1079)重建后寺院稳定存续,南宋发展到鼎盛,宋孝宗幼时曾到此登钟楼,误行坠地而屹然不动,后榜钟楼曰“景龙”,宋宁宗召讲华严经并赐号、御书;清代“东塔朝暾”为“嘉禾八景”之一,至清晚期大部分建筑毁于兵火。建国初期,东塔寺尚有一水环绕,寺内建筑尚存头山门、二山门、东塔、大雄宝殿、药师殿、西南房等六处。20世纪60年代,遗址区域先后建造民丰造纸厂和冶金机械厂职工宿舍;1968年,东塔拆除,地宫出土文物28件/组现藏于嘉兴博物馆;至20世纪末,东塔寺地面建筑基本无存。
2019年至2022年,为配合地块拆迁工作,嘉兴市文物部门对遗址进行了全面考古调查工作。2023年9月,经过国家文物局批准,浙江省文物考古研究所联合嘉兴市文物保护与考古研究所、嘉兴博物馆开始正式考古发掘,目前已发掘面积4300平方米。
东塔寺遗址坐北朝南,原有一水环绕,尚存部分河帮岸遗迹;梳理文献记载,中轴线上从南到北依次有:指南桥、山门、天王殿、东塔、水池、普光明殿(大悲宝阁)、华严堂、华严经阁等;通过考古工作确认寺院基址格局尚存,目前已确认中轴线上四进建筑及环寺河道四至。
东塔寺遗址平面全景
寺院南界河上存有石桥遗迹,石桥与南界河帮岸均为条石垒砌,根据其形制构造判断为晚期明清遗迹,对应文献记载中“指南桥”。
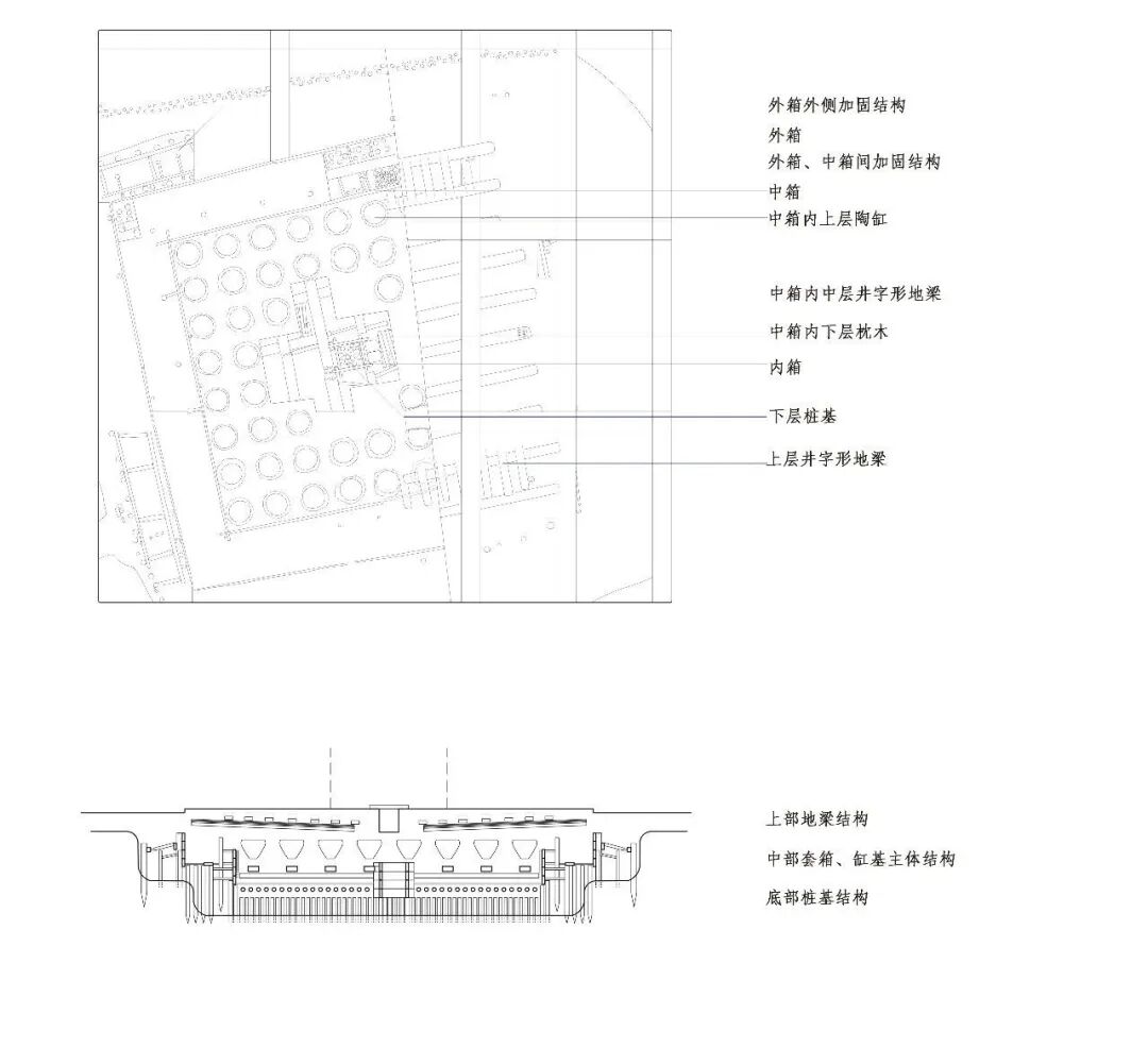
东塔原为砖身木檐七级方塔,塔基平面正方形,营造时先挖约900平方米的深坑,坑边及坑底打下密集桩基,坑内换土逐层夯筑,并在其中搭建木构框架:底层桩基中心竖立放置四层“井”字形木板套箱,内部填夯土、碎砖,靠上位置平放两块厚木料,套箱木板厚0.14米、高0.45米、长2.10米,部分凿有“吉”字;中心套箱外侧先铺一层枕木和木炭,再“井”字形交叉平铺木板地梁,地梁宽约0.4米至0.6米,厚约0.3米;地梁上夯筑十余层细腻青泥后,挖坑放置52口大陶缸,其位置基本与下部地梁交叉处对应,从平面上看缸基共三圈,中心位置形成“亞”字形空间,缸口内径1.1米至1.2米,内深0.95米,缸底内径0.4米,沿口外侧用一圈竹篾或木片加固,宽约8厘米,整缸外灌有白灰包裹,白灰经检测含有糯米,陶缸内部下方为夯土层,靠上有一层木炭、一层铁屑(铁器碎片);缸基外侧还有两圈用四层竖立木板搭建的“井”字形套箱,平面上边长分别约16米、21米,两圈套箱外侧均有多层桩梁加固结构,其上方也有“井”字型交叉平铺的木板地梁痕迹。从夯土及缸基内部出土的铜钱及瓷片判定,塔基为北宋修建,与文献记载中北宋神宗元丰己未年(1079)重建相符。整个塔基结构做法甚为复杂考究,不见于《营造法式》等文献记载,对于研究宋代建筑技术有极为重要的意义。
东塔塔基遗址鸟瞰图
塔基遗址全貌
塔基中心位置结构
东塔缸基铁器碎片层
塔基外层竖板套箱
塔基中层套箱与外侧套箱间木结构
塔基外层套箱外木结构
东塔塔基平面图、剖面结构示意图
塔基北侧有水池两座,中轴对称,水池上层为石砌方池,边长约5米,池壁底部打下木桩后垒砌石块,与文献记载中的明代重建的“青白二池”对应。下层为砖砌圆池,直径约3.3米,圆池内有大量骨灰盆、骨灰罐,通过出土遗物及碳十四测年确定其使用年代为宋代,其中骨殖个体身份涵盖男女老少,非一次性埋入,印证了东塔寺在历史上稳定社会和减少病疫的作用。这两座宋代圆池是太湖流域曾盛行于两宋时期的烬骨水瘗典型遗存,也是目前所见唯一完整的撒骨池实物遗存,为宋代江南地区火葬的研究提供了重要实物材料。
塔基北侧西水池
水池北侧的F1遗址台基破坏严重,仅存中部夯土及早晚两组磉墩遗迹。晚期遗迹包含大型磉墩10个,边长2.4米至2.8米,为殿身磉墩,小型磉墩12个,边长约1.2米,为副阶磉墩;该组磉墩是在原有夯土上挖坑后用竖砌青砖和碎石夯土隔层筑造,建筑平面呈倒“凸”字形,殿身面阔三间,进深一间,明间前出一间抱厦,周圈副阶围绕;通过保留的部分柱础石遗物及建筑格局、尺寸规模判定其为明代大型楼阁建筑,对应文献记载中的“普光明殿”。早期磉墩较小,边长约1米,用砖、陶瓷片堆筑于夯土中,平面格局不完整,推测为面阔三间、进深三间,从其中陶瓷片判断年代为宋代;对应文献记载中的“大悲宝阁”。
主体殿阁F1平面图
主体殿阁F1晚期磉墩
主体殿阁F1早期磉墩
F1北侧为建筑基址F3,尚存部分西侧台基包边遗迹,夯土范围北界确认,南部被近现代文保点叠压,已揭露磉墩6个,为乱砖填筑,平面格局未完整揭露,仅确认面阔三间,进深一间;从出土遗物中判定其年代为宋代。F3以北至北侧河道以内的寺院院落中未发现其他中轴建筑遗址,从剖面地层上可见宋代重建寺院时,填平早期沟壑并垫土筑基做平地面,中轴线上建筑基础则挖坑再重新多层夯筑。寺院整体营建过程清晰,为研究江南地区宋代大型寺院的建设施工提供了重要材料。
宋代建筑F3平面
宋代建筑F3砖堆磉墩及夯土剖面
河道以北的中轴线上还存有大型建筑基础及道路遗迹,已确认平面为面阔五间、进深五间的石砌磉墩遗迹,或为明代经阁建筑基础,待继续发掘清理。
河道北侧建筑遗址及道路遗迹平面
此外,寺院中轴线以东的高地上发现汉唐早期墓葬10座,以砖室墓为主,唐墓分布于汉代土墩墓群周围,可见此处自汉代造土墩墓后为高地,至宋代建寺时将周围低洼处垫高做平地面建设寺院。东侧界河内还发现大量宋元时期寺院生活区遗迹,包括水井、灶、排水沟等,从剖面上可见北宋寺院向外多次堆土扩建的遗迹,补充了寺院的完整格局及遗址形成的变迁历程。
出土文物以建筑构件和生活用品为主,建筑构件包括包括各类砖、瓦,如记载了捐赠者信息的朱书文塔砖、红棕色琉璃筒瓦、各类花卉纹和龙纹瓦当、重唇板瓦、火珠、瓦将军、蹲兽、鸱吻、兽头等;生活用品以宋代的各类陶瓷器、铜钱为主,其中瓷器产地来源丰富,器形以碗、碟、盏为主,部分器物底部有墨书“东塔”“塔”等相关文字。
部分出土文物(建筑构件)
出土石菩萨像
出土铜钱“熙宁重宝”
东塔寺是嘉兴城市历史上的重要地标,为嘉兴近郊规模最大的寺院,东塔寺遗址的发掘为嘉兴城市考古、建筑考古以及佛教文化的研究提供了重要材料。塔基遗址保存完整,时代明确,是国内首次完整揭露的、结构处理最为复杂的塔基遗址,代表了北宋时期江南建筑基础做法的最高水平,补充了中国古代建筑复杂基础做法的材料空缺,体现了古人对水乡潮湿软土环境卓越的适应能力。寺院“前塔后殿”的格局保存完好,布局清晰,是中国早期寺院的典型格局,代表着佛教中国化的重要变化阶段。



















