遗产数据库

显示子项
丝绸之路文化遗产 丝绸之路:长安天山廊道的路网 丝绸之路:泽拉夫尚-卡拉库姆廊道 丝路预备遗产点 丝路相关世界遗产 丝绸之路:费尔干纳—锡尔河廊道
文物保护单位 省级文物保护单位 市县级文物保护单位
国家 哈萨克斯坦 吉尔吉斯斯坦 乌兹别克斯坦 土库曼斯坦 塔吉克斯坦
世界遗产 跨国遗产
遗产专题 海上丝绸之路遗产点 泉州:宋元中国的世界海洋商贸中心 长城及烽燧 万里茶道
中国历史时代
考古时期 青铜时代 铁器时代

• 法海寺石塔

法海寺石塔法海寺院位于新密市老城西街法海寺内,创建于北宋咸平二年(公元999年), 塔为单层多檐式,共9级,平面呈方形,外檐7级。高13.08米,由基台、仰覆形基座、塔身与塔刹等部分组成。塔身下部设方门,内为八角形塔心室,室内有 半圆形五棱白玉石座,内壁雕刻佛教经传故事。各层塔身尺度有明显收分,具有明显的北方建筑特色。塔刹刹座用活泼的山云造型 ...

• 杨岭塔

杨岭塔位于平陌镇杨岭村北岭上。清嘉庆十四年( 1809年)由知县杨泰起所建。该塔座北朝南,密檐式七层砖砌方塔,高15米。基座为青石垒砌,塔刹为青石凿造。塔身第六层中空,东西设圆券形门相通。塔身南第二层中部有杨泰起题诗石碣一方:“山峰鼎峙透,青霄水带山。环佳气绕维,岳嵩高垂阴。”该塔对于研究清代建筑以及清代历史具有一定的价值。2016年1月22日 ...

• 马良沟遗址

马良沟遗址位于新密市来集镇马良沟村西约100米的岗地上。遗址南北长223米,东西宽57米,总面积约1万平方米。1979年5月9日开始试掘,开挖4 x 10探沟两条,历时6天,试掘面积80平方米。文化层厚65—70厘米。出土的遗物丰富,有石器和陶器。分别经碳14测定、及从岀土的文化遗物特征、出土的石器和陶器的种类、器形、纹饰特征,出土的石斧、石铲和石磨盘特征等 ...

• 大隗洪山庙

大隗洪山庙位于新密市东南20.3公里大隗镇陈庄村,因庙祀洪山真人,故名。庙座北向南,气势雄伟,建筑面积2100平方米,庙内现存建筑16座,房舍44间, 明、清时期碑刻18块。洪山庙古建筑保存基本完好,特别是大殿保存最为完整,建筑工艺复杂考究,为中原地区现存古建筑之精华。其石柱上雕刻的图案和内檐拱眼壁上的绘28幅戏剧人物画,形象逼真,栩栩如生,对研 ...

• 虎耳坡遗址

虎耳坡遗址虎耳坡遗址位于灵宝市五亩乡宋曲村虎耳坡自然村。遗址东为居民,西为寺沟河,南临大寨,北为干沟,东西长300米,南北宽250米,总面积75000平方米。遗址中断崖上灰坑密集,文化层厚达3米左右。从拣到的陶片看以红陶为主,灰陶次之。器表装饰有绳纹、划纹并有彩陶。能辨出器形的有钵、盆、罐、缸、小口尖底瓶、石斧等。根据包含物判断,应为仰韶文 ...

• 城烟遗址

城烟遗址城烟遗址位于灵宝市川口乡城烟村南。遗址南靠香观坡,东为后干河,西临八道河,北为干河与霸底河交汇处,遗址总面积20763平方米,共发现房址32座、墓葬23座、瓮棺81处、陶窑29座,灰坑(窖穴)590座,沟3条。在遗址中断崖上灰坑和文化层明显,文化层厚达4米左右,拣到的标本看:以红陶为主,灰陶次之,器表均为素面。能辨出器形的有小口尖底瓶、钵、 ...

• 北村遗址

北村遗址北村遗址位于灵宝市大王镇北村北部老村四周,50年代调查发现,1956年原灵宝县人民委员会公布为第一批县级文物保护单位。1962年河南省文物工作队曾在遗址东北角试掘。该遗址以胡同沟为界将遗址分为两部分。遗址北部以老槐树为坐标向东150米,向北至黄河岸边,面积164766.5平方米。南部以老槐树为坐标向东100米,向西100米,面积为30508平方米。从老 ...

• 前岭遗址

前岭遗址前岭遗址,位于灵宝市朱阳镇底垣村南部,遗址东至贾村五、六组,西至寺峪河东岸,南至灵朱公路,北至底垣村南部,南北260米,东西400米,面积约10万余平方米。遗址中灰坑密集,文化层厚达3.5米左右,遗址中包含物丰富,从捡到的陶片看:均为红陶,器表纹饰有绳纹、附加堆纹等。能辨出器形的有:小口尖底瓶、罐、彩陶盆、钵、石斧、缸等。根据包含 ...

• 槐树园双碑楼

槐树园双碑楼槐树园双碑楼,位于灵宝市函谷关镇槐树原村东北部。碑楼分三部分,下有座,为青石垒砌,座高0.33米,楼正面双龛,通长3.57米,宽2.02米,通高约5米,顶部仿悬山式建筑,上有砖雕牡丹花草纹脊,前有垂脊和戗脊,脊前有吻,檐下有垂帘柱,再下为双碑龛。正面、碑面共有四副砖雕对联,该碑楼文字由清末灵宝名人薛书常撰写,书法艺术较高。该碑楼 ...

• 麻衣和尚塔

麻衣和尚塔麻衣和尚塔,又名普通塔,位于三门峡市灵宝市豫灵镇堡里村沐珠峪中,麻衣和尚塔,为八角形九重塔,由地宫、塔基、塔身、塔顶、塔刹五部分组成。塔坐东北,面向西南,塔身正面上部有神龛,塔身两面各有一石碑题记,一方为宋代至道元年题记,一方为明代成化十一年普通塔记,两方题记均已被盗。根据乾隆十二年阌乡县志记载:“云华洞,在石舊寺,宋 ...

• 马官屯遗址

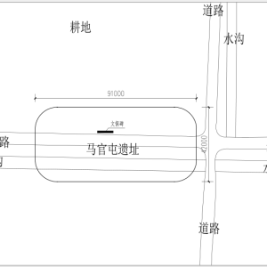
马官屯遗址位于胡官屯镇马官屯村西1000米处,东西长91米,南北宽42米,分布面积为3822平方米,地势较为平坦,遗址内有一条东西向的土路和水沟在遗址中部偏南侧通过。马官屯遗址平面示意图马官屯遗址航拍遗址范围内为灰土,现为耕地,地表和断层处有大量陶片和瓷片,多属夏、商、周、汉、宋之物,其中有鬲足、鬲口沿、网坠、骨器、残瓦当、磨制的三棱状石箭 ...

• 张楼遗址

张楼遗址张楼遗址,位于河南省南阳市镇平县贾宋镇张楼村西南一土岗上,严陵河从遗址西1200米由北向南流过。赵湾水库西干渠从遗址西半部穿过。面积约65000万平方米,该遗址属于新石器时代仰韶文化时期聚落址。张楼遗址发掘的陶片、石斧张楼遗址发掘的陶片、石斧张楼遗址文化层厚0.6-4.5 米左右。采集有泥质红陶和加砂灰陶片、红烧土块、石铲、石斧、带穿独 ...

• 侯集山陕会馆

侯集山陕会馆侯集山陕会馆,是清代山西陕西商贾所建,位于镇平县侯集镇镇区西南角,侯集镇西门村县二高中院内。始建于明代,清乾隆三十二年(1767年)重修。现存的山陕会馆,中轴线上有卷棚三间,大殿三间。大殿两侧有东,西配殿各三间,卷棚前两侧各有面阔7间厢房一座,构成一个整体,砖瓦结构。卷棚与大殿间房檐相接,显得紧凑,建筑高大雄伟,结构严整,保 ...

• 山北张村传统民居

山北张村传统民居山北张村传统民居,位于镇平县西南隅枣园镇山北张村,南毗邓州、西邻内乡,是三县交界的古村落。该村靠近镇平至邓州的古官道,村南自东向西分别是先主山(文峰山)、土故山(踢脚山)、寺山(西山),为伏牛山之余脉,“山北张村”由此而得名。山北张村源于明代永乐四年(1406年),陕西长安移民张心希兄弟三人在先在山北、沙河之阳落户,垦 ...

• 石佛寺大殿

石佛寺大殿石佛寺大殿,位于镇平县石佛寺镇新民路中段北侧,原名竹园寺、洪教寺,因寺内供奉大石佛而得名。2016年2月15日,被公布为河南省第七批文物保护单位。石佛寺创建于北魏永熙二年(公元533年),重建于元代。明洪武三年重修。明代、清代多次重修。现存殿宇系清光绪十六(1891年)重修,目前保存有大殿、卷棚各三间。卷棚面阔三间,进深一间,单檐硬山卷 ...

• 镇平黉学大殿

镇平黉学大殿镇平黉学大殿,位于镇平县城府前街东段北侧。黉学,即官办县学,黉学大殿亦称文庙大殿、大成殿。2016年2月15日,被公布为河南省第七批文物保护单位。黉学大殿现存建筑重修于清康熙二十三年(1684年)。原建筑有大成殿、明伦堂、廊房、戟门和屏风墙。大成殿内摆放有孔子牌位,东西廊房置有“四配”、“十二哲”、“七十二贤”之位,明伦堂内藏 ...

• 卢医庙大殿

卢医庙大殿卢医庙大殿,位于镇平县卢医镇街区东北角,为纪念战国名医扁鹊而修建。该庙始建于明代,原为一组古建群,现仅存大殿,为清代建筑。大殿坐北面南,面阔五间,进深三间,单檐歇山,四角起翘,灰色筒瓦屋面。室内屋架为七檩大木作,施五架梁,檐下施五踩重昂斗拱,文革期间被损毁。院内保存明清碑刻五通。2016年2月7日被公布为河南省第七批文物保护 ...

• 彭公祠近现代建筑

彭公祠近现代建筑彭公祠近现代建筑,是民国时期为纪念宛西自治领袖彭禹廷而修建的建筑群落。位于镇平县老庄镇杏花山北麓的虎山,由祠堂、墓园、纪念碑等组成。2008年6月16日,被公布为河南省文物保护单位。彭公祠正房彭公禹廷纪念碑彭公祠照壁彭公祠始建于1934年,为一四合院落,正面四柱框架的砖石山门蔚然耸立,上书“彭公祠”三个大字。祠堂正房占地60 ...

• 宝林寺石塔

宝林寺石塔宝林寺石塔,位于镇平县高丘镇深山中的宝林寺西北100米处,为一具有喇嘛风格的佛教石塔,2006年6月8日被公布为河南省文物保护单位。宝林寺石塔共6层,由塔基、塔心室、塔身和相轮4部分组成,高约9米,为汉白玉雕砌而成。塔基用8块石条砌成八角形,壁面精雕二方连续波纹图案,其上用仰莲、俯莲瓣砌成圆形束腰须弥座。塔身下层为鼓状椭圆形,外部 ...

• 禹寺遗址

禹寺遗址位于孟州市谷旦镇禹寺村村西北的丘陵上,总面积约150万平方米。遗址内先后发现汉唐、东周、西周以及二里头文化、龙山文化时期的古代文化遗存。1978年新乡地区考古工作队曾在此采集有陶罐、石刀、石铲等,陶器有泥质灰陶与夹砂陶,纹饰以绳纹和方格纹为主,石器大多为通体磨光的龙山文化遗存。2020年4月,河南省考古研究院为配合小浪底北岸灌区,对 ...

• 河阳故城

河阳故城,位于孟州市西北槐树乡古周城村,又称周襄王受觐城、周襄王宫,是晋文公会盟诸侯之“践土”。后经历代修补使用,河阳故城基本呈正方形,北枕龙台长岭,南望滔滔黄河,东、南、西三面皆为沟壑,只有南北一条通道贯穿其中。故北城墙保存基本完好,西城墙仅存与北城墙相交的一段,南城墙现仅存西边一段,可明显地看出城墙是用土分层夯筑而成,东城墙 ...

• 缑村薛氏宗祠

缑村薛氏宗祠位于孟州市河阳街道办事处缑村中心区域,始建于明末清初,乾隆五十六年重修,道光九年增建后楼房。宗祠坐南向北,长45米,宽29.4米,占地面积1323平方米,有街房三间,厅房三间,后楼房三间。祠内现保存有清康熙六年谕祭碑、修后楼碑等清代碑刻13通,河阳薛氏家谱、薛所蕴传文集、刻板《正字通》、《论语》、《康熙字典》等历史典籍。薛氏宗祠 ...

• 凤头岗遗址

不可移动文物凤头岗遗址标志牌凤头岗遗址位于辉县市峪河镇丰城村东南1.5公里处。因遗址所在的岗地远远望去如同一只巨大的凤头,故名“凤头岗遗址”;又因其位于丰城村,故也称“丰城遗址”。凤头岗遗址全景遗址中心区南北长612米,东西宽470米,总面积达30万平方米。遗址文化层堆积厚达4米左右,自下而上堆积依次为龙山文化层、先商文化层、二里岗文化层、 ...

• 太平兴国禅院碑

不可移动文物太平兴国禅院碑位于辉县市沙窑乡后庄村西部永安山下中湖内。立于宋太平兴国六年(981)。太平兴国禅院碑材质为青石,螭首龟趺。通高2.43米、宽0.76米、厚0.26米。螭首两面上部均为龙爪戏珠,碑额阳面正中圭形部刻有篆书"大宋太平国禅院碑"九个字。太平兴国禅院碑碑首碑额阴面正中圭形部刻有一尊佛像,为结跏趺坐,圆形束腰仰覆莲座。碑身长方 ...

• 辉县文庙

不可移动文物辉县文庙位于辉县市共城大道中段路北。又名孔子庙,古称学宫。始建年代不详。而据清道光《辉县志》载,“辉邑有学有庙,初建远不可考,元至元丙子知州司仁重建,费几万緍,壮丽甲他邑。”整组建筑为中轴式布局,坐北朝南。南北长164米,东西28米,占地面积4592平方米。主体建筑原有照壁、棂星门、泮池、东西官厅、大成门及两角门、名宦祠、乡 ...

• 灵阳观记碑

灵阳观记碑位于辉县市胡桥街道办事处南观营村西南500米的灵阳观遗址内。 元至元二十五年(1288)立石,碑通高2.90米、宽0.91米、厚0.30米,由碑首、碑身和碑座组成。六龙盘首,额篆"重修灵阳观记"六字。碑阳碑文字体为行书,计24行,足行57字。奉政大夫兼燕南河北道提刑按擦司事太原白栋撰文,朝列大夫陕西汉中道提刑按擦司大使程思廉书丹,通议大夫前中 ...

• 赵长城遗址

赵长城遗址即赵南长城遗址,位于辉县市与卫辉市、林州市交界处的山岭上,是公元前333年赵肃候为防御其南部魏国入侵而建的。北起南寨镇北岸泉村西北的山岭上,向南经西平罗、南村、拍石头、常村4个乡(镇)10余个村,南止于张村乡井南洼麦窖村东的山岭上。遗址全长约40公里,基宽2.1-2.7米,残高0.3-1.3米,全部用青石垒砌,城墙上每隔数百米设有哨所、烽火 ...

• 重门城遗址

重门城是齐王曹芳的王宫亦名方城遗址,俗称“齐王宫遗址”。是汉魏时期的城址。现存面积约9万平方米。位于河南省辉县市区西北10公里高庄镇大史村西北隅600米处。地处东径113o42'14.8'',北纬35o30'30.2'',海拔80米。西侧紧靠黄水河,东侧为鲤鱼亭河,南连安阳陂,东南遥望卓水陂、百门陂,北为沙地丘陵。重门城是曹魏少帝曹芳早年的王宫(齐王宫)和嘉平 ...

• 文昌阁

文昌阁位于辉县市区东南部文昌路中段南侧。创建于明代,为八角形三层攒尖顶阁楼,砖木结构。由阁基、阁身、刹顶构成,通高15.35米。刹顶为琉璃珠宝刹,上层阁顶覆以蓝绿色琉璃瓦,围脊上有卷草叶纹图案和狎鱼、狮子、仰天吼、仙人等形象,檐下转角处有五踩重昂斗拱和斜拱16攒。中层围脊上饰有卷草纹图案与龙、凤、麒麟、奔马等造型,檐下为一斗二升斗拱, ...

• 南湖寺

南湖寺山门与钟鼓楼南湖寺位于辉县市沙窑乡白庙南湖村东部,寺院地处侯兆川西部崇山峻岭间,背枕崇宁山龙处坡,面临山泉小溪水西沟,周边竹树苍翠。南湖寺创建于元至正元年(1341年),明代寺院被诏封为“恩国寺”,并赐匾“恩国禅寺”;清代寺院得以再次兴盛,直至民国时期。中佛殿大雄宝殿寺院坐北面南,中轴线上为一进二院,两侧分别为东西跨院,占地面 ...

• 白鹿山寺院群旧址

白鹿山寺院群旧址白鹿寺白鹿山寺院群旧址位于辉县市上八里镇鸭口村西北白鹿山崖危岩间。太行白鹿山崇峰叠嶂林木森蔚,石窦滴泉汇池灌圃。后赵石勒时期天竺高僧佛图澄云游白鹿,挂锡於此,因峰构宇,凭岩考室,创建寺院玄极和白鹿两处。千佛碑北齐河清四年(565年),玄极寺扩建并雕刻造像,形成左侧危栈石室,右侧佛洞的规模;白鹿寺整修岩龛建造石室,贮 ...

• 老爷顶真武庙

真武庙大殿老爷顶真武庙位于辉县市上八里镇回龙村西北紫团巍山巅上。紫团巍是老子修行之所,俗称紫团巍为“老爷顶”,庙内祭祀真武大帝,故称 “老爷顶真武庙”。老爷顶远景创建年代不可考,现存建筑为明代嘉靖三年(1524)遗存。真武庙坐落在石雕栏杆围成的高大平台上,原由拜殿和大殿组成,拜殿前有明万历二十六年(1599)铁鼎一口,其前有一青石牌坊, ...

• 新华社中原总分社旧址

新华社中原总分社旧址位于商酒务镇赵官营村。2016年1月被河南省人民政府公布为第七批文物保护单位,2020年12月被省文物局列入河南省第一批不可移动革命文物名录。新华社中原总分社旧址俯拍图1948年5月26日前后,中共中央中原局进驻赵官营村。7月1日,以新华社中原野战军分社、华东新闻大队和新华总社派来的电务人员为基础,成立了新华社中原总分社,具体负 ...

• 李雪峰旧居

李雪峰旧居位于宝丰县商酒务镇赵官营村北的稷祖庙。该建筑始建于明正德八年(1513年),清代重修,文革期间山门、东配殿损毁。现存正殿一座,面阔三间10米,进深5.5米,建筑面积55平方米。该殿为硬山琉璃瓦覆顶,内有4根明柱,石质柱础。庙内原有清代重修碑记3通,现已散失。稷祖庙内供奉稷祖像,相传稷为百谷之长,教民植百谷,民缅其功,逝后封为稷神。 ...

• 白塔营坦克库

白塔营坦克库位于宝丰县张八桥镇白塔营村南。2008年3月,在第三次全国文物普查中发现,2023年1月被平顶山市人民政府公布为第四批市级文物保护单位。白塔营坦克库位置图白塔营坦克库航拍图1970年3月,中国人民解放军0140部队十三师某团移防县城,分别驻在县城北关、张八桥镇白塔营村和大营地区。部队与地方机关、乡村一起学雷锋、做好事、修道路、筑桥涵, ...

• 龙兴寺及石塔

龙兴寺及石塔位于宝丰县前营乡小店头村龙兴寺自然村西南部。2016年1月被河南省人民政府公布为省级文物保护单位。龙兴寺西佛殿一、龙兴寺龙兴寺始建于东汉末年,唐宋时寺院香火旺盛,元延祐年之后又称训狐寺。寺院坐北向南,门对石河,殿宇建筑依山就势,北高南低,错落有致,占地约40余亩。唐画圣吴道子,曾于天宝年间在该寺华严小殿作画两壁;东壁作维摩 ...

• 解庄遗址

解庄遗址位于河南省平顶山市宝丰县肖旗乡解庄西部、裴里村北部、徐桥村南部,2006年6月被河南省人民政府公布为第四批河南省文物保护单位。遗址概况解庄遗址东西长1600米,南北长2000米,占地面积约320万平方米。文化层堆积厚5-6米,地表采集标本有石斧、石镞、石铲、石镰、石刀及大量陶片。陶片的器形有盆、瓮、鼎、豆、罐等,主要为新石器时代仰韶文化和 ...

• 讲武城遗址

讲武城遗址,东周、秦汉、金元时期古城址,位于宝丰县商酒务镇古城村。2016年1月,被河南省人民政府公布为第七批河南省文物保护单位。讲武城遗址局部(自东南向西北)据清乾隆八年版、嘉庆二年版、道光十七年版《宝丰县志》载:“马志云:讲武城距塔里赤墓数里,城传即其所筑,土人呼为讲武城”。据嘉庆《宝丰县志》载,该城为楚庄王、楚共王时期大将养由 ...

• 宝丰会议会址

宝丰会议会址(中原大学文庙校址)位于宝丰县城关镇东街居委会宝丰县一中院内,2016年1月被河南省人民政府公布为省级文物保护单位。现存文庙大成殿和兴宝中学教学楼各一座。文庙大成殿始创于宋,坐北向南。明成化十二年(1476年)重建,崇祯十年(1637年)扩建。文庙大成殿为单檐歇山式建筑,面阔5间。殿内有明柱8根,柱础为石质莲花形,墙内柱16根,明间 ...

• 贾复庙

贾复庙位于宝丰县城关镇西街居委会民治街,2012年9月被市政府公布为市级文物保护单位。一、贾复庙概况贾复庙亦称胶东侯祠,为纪念东汉胶东侯贾复所修,始建年代不详。据《宝丰县志》记载,有元代翰林王頔所撰《汉胶东侯庙记》和清乾隆五年(1740)和乾隆三十六年(1771年)重修之记载。该庙坐北向南,仅存正殿一座,矗立在石砌高台上,台前有石阶七级。正殿三 ...

• 玉带河永济桥

玉带河永济桥位于宝丰县城关镇西街居委会之西的玉带河上。2012年9月平顶山市人民政府公布为第三批市级文物保护单位。永济桥是宝丰县在第三次全国文物普查中新发现的重要不可移动文物。该桥为明代建筑,长24米,宽4米,有桥墩12座,拱11个,拱体为青石所砌,雕刻有龙首、龙尾图案,拱上铺青石板。永济桥在明嘉靖元年(1522年)由乡民张云募建,嘉靖四十一年 ...

• 陈谢兵团九纵司令部旧址

陈谢兵团九纵司令部旧址位于宝丰县杨庄镇马街村。2021年12月被河南省人民政府公布为第八批省级文物保护单位,被河南省文物局公布为第二批河南省革命文物。陈谢兵团九纵司令部旧址建筑始建于清代,庭院采用中轴线对称的北方建筑风格,占地面积约1300平方米。旧址坐东朝西,现存三处院落,六栋建筑。北院一进院南北厢房各三间、过厅五间。一进院南北厢房面阔 ...

• 豫西军工处兵工厂二分厂旧址(关帝庙)

中共中央中原局中原军区宝丰旧址群所属豫西军工处兵工厂二分厂旧址(关帝庙)位于宝丰县大营镇大营南关村,2016年1月被省政府公布为省级文物保护单位,2020年12月被省文物局列入河南省第一批不可移动革命文物名录。豫西军工处兵工厂二分厂旧址(关帝庙)全貌豫西军工处兵工厂二分厂旧址(关帝庙)又称山陕会馆,该建筑创建于明代,清代重修,坐北朝南,现 ...

• 商酒务榷酒遗址

商酒务榷酒遗址,宋至清代酿酒遗址,位于宝丰县商酒务镇商酒务村北。2016年1月,被省人民政府公布为第七批河南省文物保护单位。商酒务榷酒遗址全景一、遗址概况商酒务榷酒遗址位于商酒务镇商酒务村北约200米处古路沟两岸。商酒务在宋时为宛洛古道要冲,因该地属京西北路,临近京都开封,是著名的酒类制作和集散地。商酒务榷酒遗址内曾发现有烧酒锅灶、古井 ...

• 中原新华书店总店旧址及中原新华书店印刷厂旧址

中共中央中原局中原军区宝丰旧址群所属中原新华书店总店旧址及中原新华书店印刷厂旧址位于宝丰县赵庄镇大韩村。2016年1月被河南省人民政府公布为省级文物保护单位。中原新华书店总店旧址现存主房五间,坐北朝南,面阔15米,进深5.5米,建筑面积83平方米。中原新华书店印刷厂旧址原为一进二宅院,现仅存倒座、后院主房和东厢房共三栋,由大韩庄村委会使用, ...

• 中州农民银行旧址

中共中央中原局中原军区宝丰旧址群所属中州农民银行旧址位于宝丰县商酒务镇赵官营村主街路南,中州钞兑换处旧址位于赵官营村主街路北。2016年1月被河南省人民政府公布为第七批文物保护单位,2020年12月被省文物局列入河南省第一批不可移动革命文物名录。中州农民银行旧址中州农民银行兑换处旧址中州农民银行兑换处旧址1948年5月,中共中央中原局和中原军区 ...

• 豫陕鄂五地委五专署旧址

豫陕鄂五地委五专署旧址由五地委和五专署旧址两部分组成。豫陕鄂五地委坐西朝东,现存两处宅院,四栋建筑。正房由马秋申居住使用,面阔9米,进深7米,面积63平方米。出前檐,明柱4根,二重梁,地基青石,墙体青砖土坯混砌,硬山灰瓦顶,木质门窗。2017年12月,由县政府出资对其进行抢救性保护维修;南跨院现存东屋三间、过屋三间和临街房五间。东屋三间, ...

• 庄科洞穴遗址

庄科洞穴遗址,位于宝丰县观音堂林业生态旅游示范区庄科村村南石河北岸。1982年2月被宝丰县人民政府公布为县级文物保护单位。2021年12月被省人民政府公布为第八批河南省文物保护单位。庄科洞穴遗址远景庄科洞穴遗址所在地为浅山区,地势西高东低,成三山三川一道沟状,海拔高约300米,遗址分布范围约10万平方米。洞穴一位于石河北岸崖壁上,1977年修建提灌 ...

• 翟集关帝庙

翟集关帝庙位于宝丰县李庄乡翟集村东,2012年9月平顶山市人民政府公布为第三批市级文物保护单位。翟集关帝庙地理位置图翟集关帝庙系清代建筑,现存大殿、卷棚各三间,坐北朝南,大殿面阔10.5米,进深8.4米,硬山卷棚勾连搭琉璃瓦顶,檐下施龙首形斗拱,梁、柱、檩、椽等木构件均施彩绘,有明柱6根、卷棚面阔10.5米,进深5米,卷棚顶灰色筒瓦盖顶,明柱4根 ...

• 擂鼓台平安寨遗址

擂鼓台平安寨遗址位于宝丰县李庄乡幸福村擂鼓台山上。2012年9月被平顶山市人民政府公布为第三批市级文物保护单位。父城遗址历经商、西周、春秋战国、秦、汉、晋、南北朝,前后约一千八百余年,白雀寺位于父城遗址内城正南方,父城遗址是观音文化发祥地,据传妙善公主出生在父城,出家修道于白雀寺,成道于香山寺,擂鼓台、香山寺、白雀寺均与妙善观音传说 ...

• 姚店铺郑家大院

姚店铺郑家大院位于宝丰县张八桥镇姚店铺村中部,2023年1月被平顶山市人民政府公布为第四批市级文物保护单位。姚店铺郑家大院位置图姚店铺郑家大院平面图郑家大院系清代建筑,坐西朝东,建筑面积约758.5平方米。原为一轴两辅一进三宅院,现存建筑9栋、古树一棵、碑刻一通,该院落建筑为传统北方砖木结构,地基青石垒砌,墙体青砖土坯混砌,硬山灰瓦顶,木 ...

• 东五龙庙张氏民居

东五龙庙张氏民居位于宝丰县闹店镇东五龙庙村中部。2012年9月,平顶山市人民政府公布为第三批市级文物保护单位。东五龙庙张氏民居航拍图东五龙庙张氏民居建于明末清初,原为一进三宅院,现仅存正房一栋,坐北朝南。该房为三间三层砖木结构,面阔9.6米,进深5.7米,建筑面积164.1平方米。房顶为硬山青瓦顶,脊兽龙头、龙须保存完好。一楼窗户为整块石头凿成 ...

• 马辛庄岳家大院

马辛庄岳家大院位于宝丰县赵庄镇马辛庄村西北部,清代建筑,占地面积约800平方米。2018年6月,在少数民族文物普查中被发现。2023年1月,被平顶山市人民政府公布为第四批市级文物保护单位。马辛庄岳家大院地理位置马辛庄岳家大院航拍图马辛庄岳家大院坐北向南,原为一进三宅院,现存一进院过厅,二进院过厅、东厢房,三进院东、西厢房和正房,建筑面积约500 ...

• 豫西行政干校旧址

豫西行政干校旧址位于杨庄镇杨庄村。2016年1月被河南省人民政府公布为第七批文物保护单位,2020年12月被省文物局列入河南省第一批不可移动革命文物名录。该旧址原为杨家大院,建于清嘉庆年间(1795年—1820年),由清嘉庆庠生杨岱修建,现存古建筑24栋,建筑面积约2900平方米。杨家大院由杨岱与其子杨岸清,其孙杨淮历经嘉庆、道光前后约五十年间修建而成 ...

• 宝丰酒厂酿造车间及酒库

宝丰酒厂酿造车间及酒库位于宝丰县城关镇人民路中段。该厂址坐南朝北,占地面积16.9万平方米,其中生产厂房1.43万平方米,办公和生活用房7.69万平方米。现存酿酒车间3栋,地上酒库2栋,地下酒库1栋。2008年3月在全国第三次文物普查中被发现,2023年1月,被平顶山市人民政府公布为第四批市级文物保护单位。宝丰酒厂酿造车间及酒库航拍酿酒车间位于生产区路 ...

• 金庄无梁殿

金庄无梁殿,位于宝丰县观音堂林业生态旅游示范区金庄村老温家自然村北。2004年3月,金庄无梁殿(没梁庙)被县人民政府公布为第二批宝丰县文物保护单位。2021年12月被省人民政府公布为第八批河南省文物保护单位。金庄无梁殿航拍图金庄无梁殿,明代建筑,占地面积约600平方米。该庙始建于隋唐,现仅存明代正殿一座,正殿门前西侧立碑一通“重修金妆碑记”, ...

• 燧皇陵

燧皇陵,即燧人氏陵,是中国较早的皇陵之一。位于河南省商丘市睢阳区商丘古城西南1.5公里处。燧人氏是旧石器时代中期的氏族首领,他“钻木取火,以化腥臊”,从而开创了人类走向文明的新纪元,燧人氏在三皇五帝中位居三皇之首。燧皇陵建于何时已不可考,燧皇陵历经多次修复、扩建,占地440多亩,燧人氏雕像和墓冢矗立于陵区的中心。燧皇陵墓冢呈方锥型,长 ...

• 徐世昌公馆

徐世昌公馆位于河南省辉县市区牌坊街东段北侧原公安局院内。为徐世昌在辉县活动期间(1909-1911)的办公场所,创建于民国初年。徐世昌公馆俯瞰图公馆占地20多亩。原有建筑共有五个院落,正院一座,偏院四座,共设两个大门,南边为前门,西北设一偏门,即后门。徐世昌公馆石狮现存建筑为正院的主体部分,四合院结构,主要建筑包括过厅、正房、左右厢房等, ...

• 宝泉玉皇庙

宝泉玉皇庙位于辉县市薄壁镇宝泉村西北,原为山神庙,创建年代应为明代晚期,清乾隆三十七年(1772)重修;嘉庆年间再次维修,并改名为玉皇庙;同治年间重修。寺院坐北朝南,南北28米,东西20米,占地面积560平方米。宝泉玉皇庙山门大殿东侧廊墙上嵌有石刻两块,西配楼一层南廊墙上嵌一碑刻。该建筑群保存完整,具有重要的历史、科学、艺术和文化价值。宝 ...

• 共城百泉书院

共城百泉书院俯瞰共城百泉书院位于辉县市区书院街西段北侧城内小学内,为清代建筑遗存。百泉书院自清乾隆年间被乾隆行宫占用后即停止了讲学活动,清代道光年间,辉县知县周际华在城内捐资购置房舍,重兴百泉书院,世称“共城百泉书院”。书院原有建筑均为官房,坐北朝南,分东、中、西三院计100多间。共城百泉书院前厅共城百泉书院后院其中,西院40余间作 ...

• 震庄历史建筑群

震庄历史建筑群 盘龙区北京路514号,建于民国31年(1942年),是民国时期云南省主席龙云的私人花园别墅住宅。新中国成立后,改为云南省政府接待国家元首和重要贵宾的迎宾馆。整个建筑既有中国古典园林的风貌,又有欧式建筑格调。由内外两院构成,外院由一组7栋中式小楼,以及水上餐厅、亭榭组成,是宾馆对外接待的重要设施。内院是一组法式建筑别墅群,由一 ...

• 严济慈、蔡希陶旧居

严济慈、蔡希陶旧居 位于盘龙区蓝黑路132号,建于民国,今昆明植物所东院内。旧居系单体砖木结构西式平房,平面呈“L”形,坐西向东,三开间,南侧突出一间。严济慈和蔡希陶皆为我国著名科学家、教育家,分别在物理学和植物学领域作出重要贡献。严济慈、蔡希陶旧居正是中国物理学、植物学发展历史的实物见证,有着较高的科学和历史价值。2019年2月公布为 ...

• 冰心默庐

冰心默庐 位于呈贡区三台路38号,原名“华氏墓庐”,为呈贡斗南村华氏民国时期守坟祭祀先辈使用的祠堂。抗战时期,著名作家冰心和丈夫吴文藻一家随西南联大辗转南迁至昆明呈贡居住于此,冰心应邀义务任教呈贡中学,题写了“谨信弘毅”的校训,为《呈贡县立中学校歌》作词。2019年2月公布为云南省第八批省级文物保护单位。 ...

• 文澜王家宅院

文澜王家宅院 位于蒙自市文澜镇桂林街35号,建于1935年,坐东向西,是由大门、倒厅、过厅、正房及两厢等建筑组成的民居四合院。主人王维玉(公元1892—1970年),字宪武,蒙自新安所人,1938年西南联大文学院、法商学院迁蒙办学期间,房主人慷慨腾房作为教师宿舍使用,冯友兰、罗镛、罗常培等教授就居住于此。建筑布局严谨,结构精巧,是典型的民国时期民 ...

• 闻一多、朱自清旧居

闻一多、朱自清旧居 位于盘龙区司家营村闻一多公园内,建于1940年,为昆明传统“一颗印”式典型民居建筑。1941年随西南联大南迁昆明的清华文科研究所租下该房用于教学、研究兼住宿使用。闻一多先生及其家眷、朱自清先生等学者和研究所招收的研究生们先后在这里居住并从事教学研究活动。闻一多、朱自清在此居住期间,除指导研究生学习外,还继续学术研究。 ...

• 文明街马家大院

文明街马家大院 位于五华区文明街,建于1923年,平面布局为“四合五天井”建筑,土木结构,双面坡硬山顶。房主人马鉁(1886-1963)字少坡,云南洱源人,云南陆军讲武学堂毕业。1927年8月昆明市政府成立,任第一任昆明市长。抗日战争时期任昆昭师管区司令、云南军管区副司令,致力于云南新兵的训练和补充工作,晋级中将。1949年10月去香港。2012年1月公布为 ...

• 西园

西园 位于西山区碧鸡街道苏家村,原为民国时期云南省政府主席卢汉的私人别墅,始建于1943年,别墅为两层法式建筑。作为典型的西方园林式建筑,其建筑风格独特,为昆明市至今保存较为完好的法式建筑物。建国后,作为省政府接待处,别墅曾接待过多位国家领导人和外国元首,为云南省外交事业做出了很大贡献。2012年1月公布为云南省第七批省级文物保护单位。 ...

• 北京路石房子

北京路石房子 位于盘龙区北京路427号,始建于1937年,原为爱国将领李鸿谟(字希尧)将军的私人府第。李鸿谟在抗战时期任云南省警务处长、云南防空副司令及昆明警务副司令。1949年李将军随卢汉主席和平起义,50年卢汉就在此宴请陈赓、宋任穷将军,建国后为昆明市长潘朔端住宅。2012年1月公布为云南省第七批省级文物保护单位。 ...

• 梁思成林徽因旧居

梁思成林徽因旧居 位于盘龙区龙泉办事处棕皮营村,1938年1月,梁思成、林徽因夫妇为躲避战乱来到昆明,借用当地一位名叫李荫村的村民的土地,用以建盖房屋。于1939年开工,至1940年春建成,面积80平方米左右,三间住房坐西朝东,两间附属用房坐东朝西,中间隔着一条通道,自然地形成了一个小庭院。房屋建盖完成后,梁思成、林徽因夫妇只在房屋里居住了短 ...

• 洛克故居

洛克故居 位于玉龙县白沙镇雪嵩村,应该称为洛克旧居,1922年,美籍奥地利人约瑟夫·洛克(1884-1962)以美国《国家地理杂志》的探险家、撰稿人、摄影家等身份,从泰缅边境进入中国云南,然后从滇南思茅辗转到滇西北的丽江,从此在玉龙山下一住27年。现有一院三房,是当年美国国家地理学会中国云南探险队总部旧居,楼上为洛克住了二十多年的起居室,楼下为 ...

• 李根源旧居

李根源旧居 位于腾冲市叠水河村中的“叠园”,系国民党元老、著名爱国人士李根源先生在腾冲的旧居,1946年兴建,1947年落成,为土木结构庭院式建筑。旧居有陈列室、碑廊等组成,建筑古朴,造像精美,展馆资料齐全,碑廊碑文雕刻精美。李根源(公元1879—1965年),云南腾冲人,1904年留学日本,1905年参加同盟会,1909年回国,出任云南陆军讲武堂监督,旋 ...

• 朱德旧居

朱德旧居 位于昆明市水晶宫小梅园巷3号和红花巷4号,建于1909—1922年,坐北朝南,中式土木结构四合院。正房二层,面阔五间,进深二间,屋檐下有廊。耳房面阔三间,进深一间,倒座面阔五间。原是云南陆军讲武堂教官马标的私人房产。1900年朱德由川来滇,以蒙自籍身份考入云南陆军讲武堂习武,与马标有师生之情谊,1921年朱德出任云南省警察局长。马标将此 ...

• 云南贡院

云南贡院 位于五华区翠湖北路云南大学内,含映秋院、熊庆来李广田旧居,年代明—民国,原来是明清两代云南的贡院,也就是全省举行科举考试(乡试)的考场。熊庆来李广田旧居始建于1937年,主体建筑为土木结构二层楼房,座北朝南,一楼为熊庆来先生的接待室,二楼为卧室或办公室。1957年至1968年,这里还居住过我国著名的教育家、诗人、文学家,原云南大学 ...

• 王家营古墓群

王家营古墓群 位于呈贡区锦绣大街,为明代镇守云南黔宁昭靖王沐英的后裔沐详、沐崧、沐绍勤、沐朝宣等人的家族墓地。经三次发掘砖室墓9座、土坑墓18座,出土金、银、铜、铁、锡、铅、玉、石、陶瓷器文物600多件,尤以嵌红、绿、兰宝石的金发冠稀世珍贵。沐崧、沐绍勤墓志皆由明代文学家杨慎(升庵)撰文。沐绍勤墓志称慎“甲申来滇”,为杨慎于嘉靖三年( ...

• 赵藩墓

赵藩墓 位于剑川县金华山上,建于1928年,原墓碑及墓石已毁,近来重新修复,为卷龛式门,碑中心刻赵藩之墓及其生卒年月,另有黎元洪所题“滇南一老”的石刻。赵藩(1851-1927年),光绪年间举人。得云贵总督岑毓英的保荐,为四川酉阳直隶州正堂,官至四川臬台。清光绪二十八年(1902年)他任四川茶盐道使时,撰写了一副对联:能攻心,则反侧自消,从古知 ...

• 钱沣墓

钱沣墓 位于盘龙区龙泉街道清水河村,墓为钱沣与原配秦氏合葬墓,建于乾隆六十年(1795年),1986年被盗,墓碑已佚。1992年和2003年两次重修,四周有雕刻石条做围栏,呈长方形。钱沣(1740-1795年),云南昆明人,清朝著名的清官、书画大家。乾隆36年进士,曾任提督湖南学政、江南道监察御史、通政司参议加太子太保、吏部尚书、协办大学士。1795年9月18日 ...

• 何辅龙墓

何辅龙墓 位于师宗县马厂村翠云山,年代清,是何桂珍于道光二十八年(1848)为其父所立。何辅龙,字郡佐,号傅岩,嘉庆年间拔贡,何辅龙以教书为生,后父以子贵诰封奉直大夫,晋封奉政大夫,候选直隶州州判。他一生致力于办学,修葺西华寺,建造文笔塔,筹办丹凤书院考棚。因墓碑有清朝名臣林则徐、祁隽藻等人的题字而具有很高的历史价值和书法价值。2003 ...

• 赵祚传烈士墓

赵祚传烈士墓 位于大姚县金碧镇仓西村,1929年3月29日赵祚传英勇就义后安葬于此,楚图南题词“人民英雄流芳万古,革命烈士碧血千秋”。其父赵竹村题联“事业荣千古,芳踪胜万人”,横批“共仰明星”。赵祚传(1903--1929年),大姚人,1926年秋前往广州,到国民革命军第三军政治训练班学习,经王德三介绍,加入中国共产党。1927年初回云南工作,历任云南 ...

• 一得测候所

一得测候所 位于西山区太华山,由云南气象、天文和地震事业的先驱者、中国自然科学家陈一得先生于1927年创办,1937年搬迁至现址,气象观测工作延续至今。陈一得先生首次把定量分析方法引入云南气象研究领域;论证了开展长期天气预报的可能性;首次把云南划分为8个气候区,为研究和开发云南气候资源提供了科学依据;搜集整理出云南历史上的气候记载;实测 ...

• 大唐天宝战士冢

大唐天宝战士冢 位于大理市下关天宝公园,“天宝战争”结束后,阁逻凤下令各地收拾唐朝将士的尸骨,就地祭祀埋葬。是安葬唐天宝之战剑南留侯李宓及阵亡将士的大型墓冢,墓冢呈圆型上包,两层基石全部用青麻石砌成,墓冢前立着刻有“大唐天宝战士冢”的大理石墓碑。明云南点兵官邓子龙将军为其题诗云:“唐将南征以捷闻,谁怜枯骨卧黄昏?唯有苍山公道雪, ...

• 杨振鸿墓

杨振鸿墓 位于隆阳区太保山,为民国元年(1912年)四月修建,1981年重修,上镌楷书"云南光复首倡杨忠毅墓",落款为"滇军都督蔡锷"。墓后立有李根源先生书"杨秋帆先生遗诗"碑和"军都督府布告"碑各一。杨振鸿(1874-1908年),1905年加入同盟会,1908年10月组织了民兵千余人,约定12月19日夜攻占永昌城,当晚兵汇城下,却只有数百人,杨振鸿率领几百人攻城 ...

• 张文光墓

张文光墓 位于腾冲市,建于1923年,张文光(1881-1913年),光绪三十年(1904年)加入同盟会,1911年10月27日领导发动了腾越起义,建立了云南第一个资产阶级共和制的革命政权—滇西军都督府,张文光被推举为都督。随即进行东征,控制滇西大部分地区。民国元年袁世凯就任临时大总统,辛亥革命的成果被袁篡夺。时任省军政府协都督、大理提督的张文光坚请辞 ...

• 唐继尧墓

唐继尧墓 位于昆明市圆通山动物园内,建于1931年,墓为石砌圆丘形,高6米,直径为16米,墓前建有廊柱式石牌坊,面阔16.70米,镶嵌着8个石碑,这8个石碑,刻着1916年护国战争期间被推举为护国军务院抚军长,大总统黎元洪的授勋令;孙中山大元帅1924年关于推举唐继尧为广州军政府副元帅的文件,以及周忠岳为唐继尧写下的长篇墓表。1987年12月公布为云南省第 ...

• 孙髯翁墓

孙髯翁墓 位于弥勒市玉皇阁后山南侧。光绪三十三年丁未岁(1907),弥勒士子协力筹资为先生修墓立碑,碑镌“古滇名士孙髯翁先生之墓”。民国三年甲寅岁(1914),爱国志士杨杰任弥勒县长,为髯翁修墓,立碑为志。民国二十六年丁丑岁(1937),杜希贤任弥勒县长,重修孙髯翁墓。墓原来在髯翁西路髯翁公园内,后迁往湖泉公园,2007年搬迁至弥勒玉皇公园内。 ...

• 兰茂墓及兰公祠

兰茂墓及兰公祠 位于嵩明县杨林镇南街村,年代明至清,是我省明代著名的音韵学家、医学家兰茂(1397——1470)的墓及祠堂。祠堂始建于1470年,历代均有修葺,1988年在原址按原貌重建祠堂。兰茂墓位于祠堂后院,为弧形条石砌成圆形土冢,墓直径4.7米,高2米,墓碑题刻为袁嘉谷撰书。1983年1月公布为云南省第二批省级文物保护单位。 ...

• 霍承嗣壁画墓

霍承嗣壁画墓 位于昭阳区文渊街,年代东晋,于1963年春在昭通县城西北后海子中寨发现,1965年11月,文物部门将晋墓整体分割包装,迁移至县城复原安置于今昭通实验中学内。1981年建永久性保护室,题名“东晋霍氏壁画墓室”。晋墓坐北向南,其形穹窿,墓顶覆斗状,整体全用石块镶砌,顶与四壁的条石,抿糊白色石灰,用墨和彩色描绘壁画。墓石顶棚与四壁上绘 ...

• 杜文秀墓

杜文秀墓 位于大理市七里桥乡下兑村,年代清,杜文秀墓侧面为长方形,正面近正方形,南北向,墓碑高约0.4米,宽约0.3米,墓顶为石雕屋顶式墓盖,两侧为大理麻布石制。墓碑书“总统兵马大元帅杜文秀墓”,墓尾为阿拉伯文碑,墓前立白寿彝先生序文及重修碑记。1983年1月公布为云南省第二批省级文物保护单位。 ...

• 王德三、吴澄、马登云三烈士墓

王德三、吴澄、马登云三烈士墓 位于昆明市北郊黑龙潭公园,1950—1951年,由墓道、墓道台地和墓地平台三部分组成,三墓皆为拱顶圆堡形石墓,背西向东,中为王德三烈士之墓,两侧稍后为吴澄、马登云烈士之墓。墓旁有石碑,刻有烈士生前事迹。王德三、吴澄烈士是中共云南省第一届临时工委书记与委员。马登云烈士是云南回族第一代中共党员。他们先后于1929年 ...

• 石匠房栈道

石匠房栈道 位于巧家县蒙姑镇东南5公里处。清乾隆五十二年(1788年),由巧家富商刘汉鼎捐资修筑。清光绪七年(1881年),江西商人王世泰、夏永顺等再次捐资拓修此栈道。因数百石工食宿于石穴中修路筑桥,俗称“石匠房”,石匠房栈道主要由栈道遗存(含隧道)、“讫可小息”摩崖、“利济行人”摩崖三部分构成。本人认为蒙姑坡铜运古道与巧家县石匠房栈道 ...

• 金沙江树桔渡口

金沙江树桔渡口 位于东川区拖布卡镇的树桔村,有红军长征纪念碑及树桔红军渡纪念馆。1935年5月初,红九军团完成掩护中央红军主力抢渡金沙江任务后,派先头部队到达东川树桔村,抢修渡船,占领北岸高地,控制两岸渡口。随后全军团3000多人马在东川船工的帮助下,全部渡过了金沙江,过江后直奔西昌,与从皎平渡过江的中央红军主力会师,完成了在滇东北的战 ...

• 茂麓厂冶铜遗址

茂麓厂冶铜遗址 位于东川区舍块乡茂麓村,地处金沙江边。现存炼炉、矿硐、矿工居住遗址、炼碴堆积等。据载,茂麓厂始建于清雍正年间(1723-1735年),盛于清乾隆至咸丰年间(1736-1861年),年产六百万斤,是清代京铜主产地之一。1993年11月公布为云南省第四批省级文物保护单位。 ...

• 元谋红军长征革命遗迹

元谋红军长征革命遗迹 位于元谋县江边乡,包括龙街渡口标语、江头村浮桥遗址,姜驿乡政府大会旧址,老城乡白酒坡地段阻击战遗址,1935年5月3日至9日,中国工农红军红一方面军红一军团和三军团一部红军长征过元谋,在龙街渡口诱敌佯渡金沙江,掩护中央红军主力从下游禄劝的皎平渡顺利渡过了天险金沙江,在军事战争史上谱写了“巧渡金沙江”的著名战例。由 ...

• 永胜大理会馆

永胜大理会馆 位于永胜县涛源乡金江坪,清代中晚期建筑,由正房、正房东西耳房、东西厢房、大门(戏楼)、大门东西耳房共8个单体建筑组成,为“四合三天井”的大理白族传统民居平面布局形式。因鲁地拉电站建设,2014年搬迁至新集镇金江坪12区中部的仿古街面上进行复原保护。2019年2月公布为云南省第八批省级文物保护单位。 ...

• 金江土主寺古建筑群

金江土主寺古建筑群 位于永胜县涛源乡金江坪,系清同治十四年(公元1875年)重建。原位于涛源乡金江村委会金江老街,由戏台、大殿、左厢房组成,保存较好。因鲁地拉电站建设,2014年整体迁建至现在的涛源镇金江坪,并按原建筑群结构补建了不完整部分。2019年2月公布为云南省第八批省级文物保护单位。 ...

• 金沙江石鼓渡口

金沙江石鼓渡口 位于古城区石鼓镇,1936年中国工农红军二、六军团(第二方面军)在此抢渡金沙江,北上抗日,谱写出壮丽的历史篇章。1977年8月1日云南省人民政府在石鼓镇街尾临江坡头,建立了红军渡口纪念碑,正面集毛泽东手迹,阴刻中国工农红军第二方面军长征渡江纪念碑,纪念碑耸峙在金沙江西岸,即长江第一湾。1983年1月公布为云南省第二批省级文物保护单位 ...

• 达摩祖师洞

达摩祖师洞 位于维西县塔城镇其宗村,始建于1662年,寺院建筑依山势顺洞壁而建,据传达摩祖师曾在此面壁修得正果,今寺内还保存有达摩面壁影像和足印,以及高僧灵塔,藏文碑刻等珍贵文物和遗迹。每年农历四月初相传为达摩成佛日,附近四县八地的藏、纳西、傈僳等民族聚集于此参加隆重的转山节。1998年11月公布为云南省第五批省级文物保护单位。 ...

• 奔子栏佛塔殿壁画

奔子栏佛塔殿壁画 位于德钦县奔子栏镇,由“曲登拥曲登”壁画、“娘轰曲登”壁画、“习木贡洞科”壁画组成。分别建于清康熙末年和光绪年间,奔子栏佛塔殿壁画是目前我省保存最完好的清代藏族宗教壁画,其内容不但反映了藏传佛教各种教派的题材,还表现了大量的世俗生活场景,是研究清代滇西北藏区社会历史、民族关系、文化交流和各种宗教传播的珍贵实物资 ...

• 周总理视察热作所及中缅会谈纪念碑

周总理视察热作所及中缅会谈纪念碑 位于景洪市西双版纳热带花卉园,始建于1982年年底,1985年3月竣工。纪念碑由三部分组成:第一部分为“周恩来总理来所视察”纪念碑,碑高4.3米,由四块象征正在茁壮成长的橡胶树苗水泥墙体构成。第二部分为“中缅两国总理会晤碑”,碑体由4块水泥构成“井”字形交错相连,支撑在一泓清澈的水池中。第三部分为“说明碑” ...

• 曼阁佛寺

曼阁佛寺 位于景洪市曼阁村,建于万历二十四年(傣历958年,1596年),坐西朝东,由大殿、经堂、僧舍、鼓房、走廊及门亭等部分组成。整个建筑长41.5米,宽31.5,总面积约为1307平方米。佛殿长11米,宽10米,面积为110平方米,是一座无柱式重檐三坡面建筑。2003年12月公布为云南省第六批省级文物保护单位。 ...

• 杨玉科家祠建筑群

杨玉科家祠建筑群 位于兰坪县营盘镇营盘街,始建于光绪二年(1876年)十月,包括爵府、沧江书院、魁星阁等,爵府建有三大院落,后遭火烧,现仅存3堵照壁、一个祠堂。沧江书院是杨玉科在兰坪创建的第一所学校,书院建筑为四合一天井,正楼为上下各三间,左右厢房两幢,大门为牌楼式楼房。魁星阁邻近沧江书院,为三层重檐歇山顶,斗拱建筑,占地面积100多平方 ...

热门信息

img

地址:陕西省西安市碑林区友谊西路68号小雁塔历史文化公园
邮件:secretariat#iicc.org.cn
电话:(+86)029-85246378