文博信息
十大考古参评项目|新疆吐鲁番西旁景教寺院遗址
摘要: 发掘单位中山大学、新疆维吾尔自治区文物考古研究所、新疆维吾尔自治区吐鲁番学研究院项目负责人刘文锁遗址概况西旁景教寺院遗址位于新疆吐鲁番市高昌区葡萄沟街道达甫散盖社区北面、火焰山南麓一座山岗上,为国内外现存罕见景教遗址之一(图一)。主要年代为唐至元代的高昌回鹘王国时期,现为新疆维吾尔自治区文物保护单位。遗址勘测面积约2500平方米,分 ...
发掘单位
中山大学、新疆维吾尔自治区文物考古研究所、新疆维吾尔自治区吐鲁番学研究院
项目负责人
刘文锁
遗址概况
西旁景教寺院遗址位于新疆吐鲁番市高昌区葡萄沟街道达甫散盖社区北面、火焰山南麓一座山岗上,为国内外现存罕见景教遗址之一(图一)。主要年代为唐至元代的高昌回鹘王国时期,现为新疆维吾尔自治区文物保护单位。遗址勘测面积约2500平方米,分布于山岗顶部、岗坡及周围,包括建于岗顶和岗坡上的各种建筑遗迹、山岗周围农田遗迹、南面通达山下的路径遗迹,及附近的2处墓地等。(图二)
图一 西旁景教寺院遗址位置
图二 西旁景教寺院遗址(发掘前)
1905年,遗址遭德国吐鲁番探险队盗掘,出土1000余件多种语文(汉文、叙利亚语、回鹘语、粟特语、新波斯语等)文献,显示出极重要之价值,长期以来受到国际学术界高度关注。(图三)截至2021年,遗址未做过科学发掘。
图三 1905年德国吐鲁番探险队从西旁遗址掘获的文献
发掘概况
2021年至2025年,中山大学、新疆文物考古研究所、新疆吐鲁番学研究院联合对遗址做了全面勘查和四次发掘,揭露了分布于山岗顶部、岗坡上的寺院本体建筑遗迹,以及分布于山岗东坡上的葡萄园和灌渠遗迹,累计发掘面积共计2546.6平方米;发现了分布于遗址所在山岗东、南面的2处墓地,清理了8座墓葬。清理出的遗迹保存状况良好、结构完整,出土遗物与自然物十分丰富,显示出遗址的丰富内容和价值。(图四)
图四 吐鲁番西旁景教寺院遗址(发掘后)
主要发现
1. 遗迹与寺院形制布局
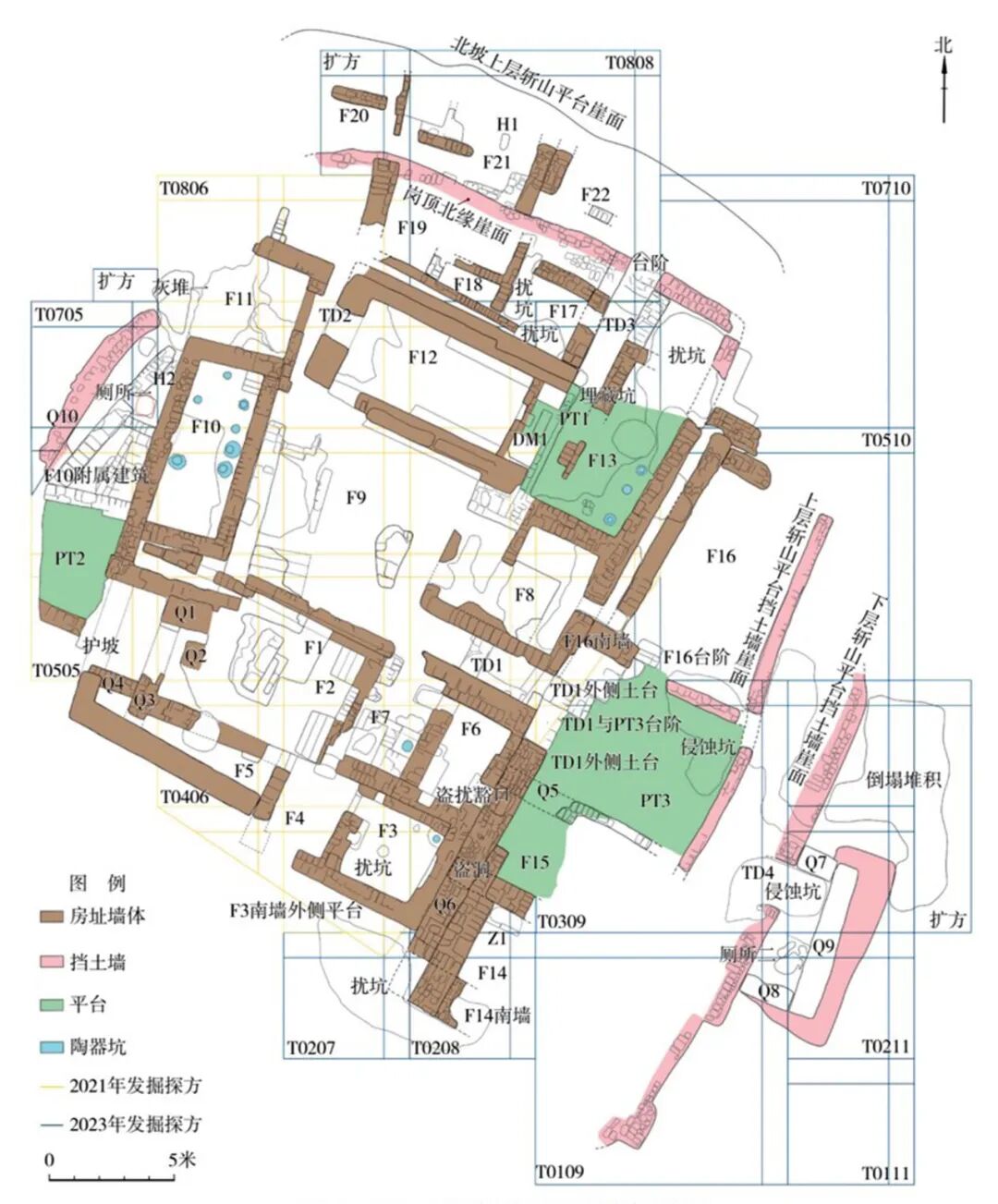
遗迹分布于山岗顶部和坡上,类别多样,包括房屋28间、通道5条、平台3座、洞窟4座、墙体11段、地面1处、灶4座、灰坑7座、灰堆1座、垃圾堆2处、厕所2间、斩山崖面7道、火塘和陶器坑位5处、沟(梯田)3条、灌渠2条等,以及藏书坑(近代)1座。(图五)其分布状况反映了寺院的形制布局特征。采用了土坯砌筑、夯筑、垛泥、凿地等多种建筑技术。遗迹之间存在复杂的重建、改建、扩建等迹象,反映出寺院不同时期的发展状况。(图六)
图五 2021年至2025年西旁景教寺院遗址发掘后状况(正射像)
图六 2021年、2023年发掘区总平面图
(1)岗顶区
为寺院中心区,清理出的遗迹有房址16座、墙5段、平台2座、通道2条、地面1处、厕所1间、灰坑1座、灰堆1处、埋藏坑1座。在布局上分为四组:大致南北并排、呈东西向座落的三组,及其西侧一组遗迹。南北并排的建筑以3间仪式大厅(F9、F2、F12)为中心,周围附属有酒窖、图书室、储物间、通道、平台、厕所等。(图七)根据遗迹间层位关系,它们可以分为三个时期,其中第一至二期属景教寺院时期。
图七 岗顶区遗迹(正射像)
(2)岗坡区
山岗东、北、西面坡上都分布有建筑遗迹或堆积,从清理结果看,各面岗坡区域利用情况不尽相同:
东坡修筑出上、下两层斩山平台,上层平台是岗顶中心区的扩展空间,上面的遗迹包括3间房址、1座平台、2堵相对独立的墙体及1座灶。下层平台用作通道,平台崖面外(东)侧清理出1条通道和1间厕所、1座大建筑垃圾堆、1条慢道、3道梯田;垃圾堆以土坯残块为主,混杂有纸文书、木制品、陶片等遗物;梯田上各存1条宽沟,延伸出发掘区外并与灌渠(G4)有对应关系,据其形制、分布状态和残存植株等看应是葡萄园遗迹。下层平台北缘为1组相对独立建筑,包括房址2间及附属的炉灶2座、1座灰坑、1处柱洞。(图八、九)
图八 东坡斩山平台及遗迹(2023年至2025年清理后,约东—西)
图九 东坡下方葡萄沟及残存植株
北坡地势较平缓,被开辟作寺院生活,共清理出三道较大斩山崖面和一道较小崖面及构筑的平台和遗迹区。较大崖面用于修筑平台(形成三层平台),较小者用作通行途径。上层平台较窄,遗存有3间小型房屋和1座灰坑等。中层平台很宽,是北坡主要活动空间,保存遗迹包括4间房屋、1座洞窟、1条通道、4座灰坑、1座灶、5处火塘及陶器坑。下层平台窄小,位于山根,未发现建筑遗迹。依靠上层斩山平台崖面修筑的一组建筑(2间房屋和1座洞窟)保存状况较好,洞窟凿于山崖内,外侧接建一个券顶门道,里面堆积十分丰富,出土了大量蔬菜等植物遗存及纸文书等遗物。(图十、十一)
图十 北坡上层斩山平台及遗迹(2023年清理后)
图十一 北坡中层斩山平台主要遗迹(2024年清理后)
西坡地势陡峻,原为一条“V”字形冲积沟,此处清理出大量垃圾,系寺院使用期间所形成。垃圾堆积深厚而层次分明(分为5层),主要是混杂在砂土等中的纸文书、木制品、陶片、织物、壁画残块、石磨、铁刀等弃置物以及土坯残块和杂草等建材废料。(图十二)
图十二 西坡的地形与堆积
2. 墓葬
2处墓地分布在遗址所在山岗的东和南面,分别编为一、二号墓地,清理了一号墓地7座墓和二号墓地1座墓。(图十三)一号墓地的墓葬大部分遭到盗掘。全部7座墓形制相同,均为建于山岗西坡中带墓道的洞室墓,墓向西,没有葬具和随葬品。除1座墓葬安葬2位逝者外,其余皆1位逝者,皆仰身直肢,头向西。从1座墓中出土了镶嵌在腰带等上的15件铜、铁饰件,大多数为十字架形。(图十四、十五)
图十三 西旁景教寺院遗址与墓地分布示意
图十四 一号墓地及IM1(清理后)
图十五 二号墓地M1
3.出土遗物与自然物
种类丰富且数量众多,其中重要遗物计3689件(组),包括多种语文文献1334件(组)、壁画约400件(编号数,残块),及木制品、陶瓷器、金属器、漆器、玉器、石器、玻璃器、葫芦器、骨角器、芦苇器、纸张、织物、皮革制品、钱币及带题铭的陶片、葫芦片、木片、布匹等。此外,有大量一般遗物及果实、粮食作物、蔬菜、食品、颜料、残留物、排泄物、兽骨等。文献经初步识别,包括汉文、叙利亚语、回鹘语、粟特语等,为国内发现数量最多之景教及叙利亚语文献。出土1册汉文(佛经等)、叙利亚文书册。另有汉文佛经、道经与叙利亚文、回鹘文景教文献双面书写之文献。一批景教壁画亦具有重要研究价值。(图十六~十九)
图十六 西旁景教寺院遗址出土遗物·文书
图十七 西旁景教寺院遗址出土遗物·壁画
图十八 西旁景教寺院遗址出土遗物·木制品
图十九 西旁景教寺院遗址出土遗物·其他
重要发现与意义
发掘确认了西旁景教寺院遗址的性质,厘清了其形制布局特征,为一座保存状况较好、结构完整的修道院。根据考古层位学、典型遗物分析、碳十四测年等,推定遗址分为三期,年代约为8世纪~13世纪(相当于盛唐至元代)。大量丰富遗迹和出土遗物等展现了中古时期中国西域景教寺院生活的丰富内容,具有重要的学术研究价值、文化遗产价值和展示利用价值,对于研究古代西域多元宗教与东西方文明交流互鉴、景教中国化、西域语言文字、基督教文献和艺术等具有十分重要的意义。
遗址保护与展示利用工作及公众考古学活动
考古发掘期间,考古队配合有关方面开展了遗址本体加固勘察和工程实施、遗址博物馆项目申报和规划设计、遗址文物保护和展示利用规划等;组织了多种形式的公众考古学活动,在当地中小学和雇工中进行了文化遗产和考古学、文物保护、吐鲁番文化遗产等科普。
研究工作与社会关注
配合考古发掘,系统组织了多方面科技考古研究,包括碳十四测年、纸张、植物遗存、残留物、排泄物检测等的科技检测,及人骨病理研究、多稳定同位素分析检测等。申请了国家社科基金重大项目、“冷门绝学”项目等科研项目。组织了“景教研究新进展:考古,历史,文献,图像”国际学术研讨会等学术会议。
考古发掘项目受到社会高度关注,新华社、中央电视台、《光明日报》、中国新闻社、中国社会科学网、《新疆日报》等媒体向国内外做了广泛报道。2023年发掘获“中国社会科学院考古学论坛·2023年中国考古新发现”。

















